Newmills House

Balblair, Dingwall, IV7 8LP

Offers Over £395,000

1.9 acres

Bedroom Count icon 3

Reception Count icon 1

Bathroom Count icon 2

  • A handsome traditional farmhouse and steading in a charming rural setting.
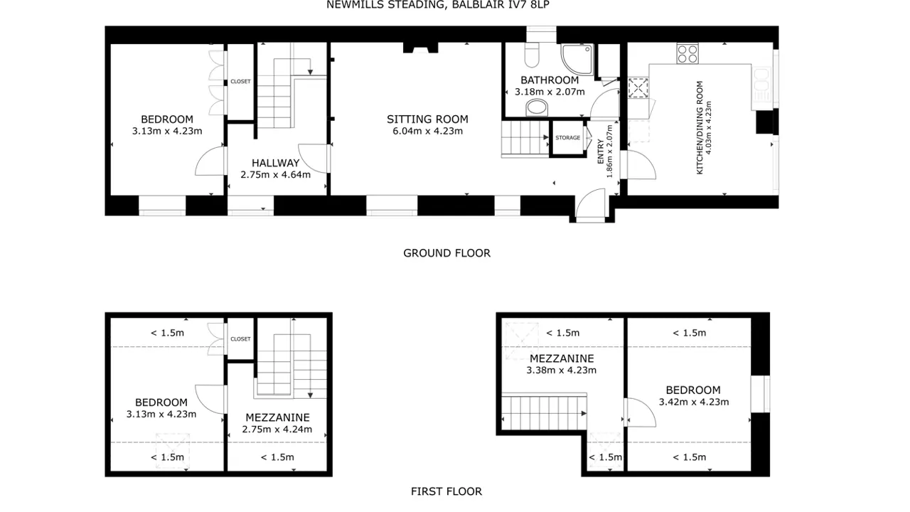
  • One Reception Rooms. Three Bedrooms.
  • In need of renovation but retaining many original features.
  • A partially converted U-shaped steading with tremendous potential.
  • Modern garden studio, polytunnels and general store.
  • Courtyard garden, formal gardens and woodland with burn.
  • Stunning views to Ben Wyvis.
  • About 0.6 hectares (1.5 acres) in all.

Newmills House is in the scattered hamlet of Newmills on the Black Isle. The property is ina beautiful, sheltered setting and one of a cluster of traditional houses, with a burn runningalong one boundary and stunning, far-reaching views to Ben Wyvis from the rear.The Black Isle lies between the Moray and Cromarty Firths and has fertile rolling countrysidewith a beautiful coastline of raised beaches and prominent headlands. The area has a numberof way-marked cycle trails and walks, while the coastal villages offer sheltered harbours andFortrose has a links golf course. The unspoilt countryside provides a haven for many rareand protected species of wildlife and Newmills is in an ideal setting from which to enjoy thebest the area has to offer with beautiful walks direct from the house.Cromarty is a former fishing village and is a charming mix of meandering lanes, fishermen’scottage and substantial houses. There is a good range of independent shops, a smallsupermarket with post office, and primary school, as well as cafes, restaurants, a brand newCommunity Cinema and the harbour with its ferry to the north side of the firth. Secondaryschooling is available at the highly-regarded Fortrose Academy and Inverness, about 30minutes’ drive away, has all the facilities of a modern city including its airport with regularflights to the south and Europe.The property was purchased by the current owners about 15 years ago and comprises atraditional farmhouse with an adjacent U-shaped stone and slate steading. The farmhouse hasbeen partly renovated but is now in need of further renovation, however, it is extremely attractive and offers great potential.