The Beeches, Bankhead Steading

Keith Hall, Inverurie, Aberdeenshire, AB51 0LQ

Offers Over £550,000

9 acres

Bedroom Count icon 4

Reception Count icon 3

Bathroom Count icon 3

  • 3 reception rooms. 4 bedrooms
  • Excellent detached family home
  • Garden ground and fenced paddocks
  • Stables and large outdoor training arena
  • Large and easily accessible gated driveway
  • Beautiful countryside location

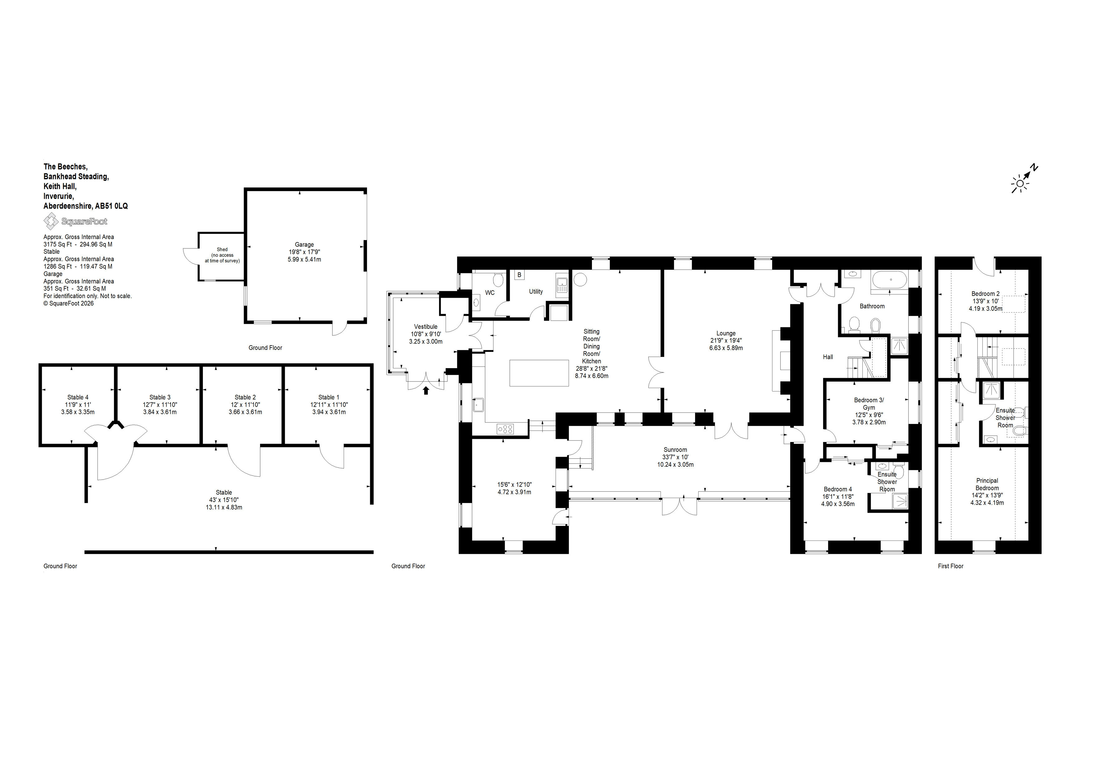
DescriptionThe Beeches is an immaculately presented detached family home set on the outskirts of the ever-popular town of Inverurie in Aberdeenshire, offering an exceptional blend of countryside living and modern comfort. Occupying an elevated position, the property enjoys stunning open views across surrounding paddocks and rolling countryside.Originally a converted steading, completed around 1997, The Beeches has since been thoughtfully upgraded to a high standard. The current owners have carefully considered both flow and functionality, most notably within the impressive open-plan kitchen, dining, and family space, the true heart of the home. Equal attention has been given to the exterior, where the land has been expertly utilised to create superb equestrian facilities. From the moment you arrive, there is clear and convenient access to the stable block, sand school, and paddocks, complemented by well-maintained formal gardens surrounding the property. A gated and tarmac driveway provides ample parking for multiple vehicles, with easy manoeuvring for larger horseboxes.The welcoming front vestibule is flooded with natural light through glazed windows and offers practical storage via a fitted cupboard. Double doors open into the main living space, a beautifully styled and versatile area that seamlessly combines a spacious dining kitchen, formal dining area, and relaxed seating area. A charming log burner adds warmth and character, making it ideal for both everyday living and entertaining.The kitchen is fitted with high-quality shaker-style units in a soft light grey, paired with an eye-catching white range cooker with extractor hood above. A substantial central island provides excellent storage and serves as a sociable focal point, complete with an overhang for informal dining. A neutral palette throughout creates a real sense of light and space, while crisp white walls further elevate the airy feel. A Belfast sink is inset to the units along with a dishwasher. Just off the kitchen, a modern utility room and WC are conveniently placed and perfect for modern family living. Beyond the kitchen, a generously sized dining room offers flexibility and could easily serve as a home office or playroom. The adjoining sunroom is a standout feature, with expansive glazed panels and French doors opening onto the garden, creating a bright and tranquil space from which to enjoy the views.Further into the home, French doors lead to a comfortable lounge, where a striking stone inglenook style fireplace with inset log burner forms a beautiful focal point. With windows to both the front and rear, the room benefits from a high ingress of natural light and offers flexible layout options. An inner hallway provides access to a well-appointed family bathroom, complete with separate bath and shower, and a carpeted staircase leading to the upper level. The ground floor also features two double bedrooms, both with built-in storage, one of which benefits from an en-suite shower room. Upstairs, there is an additional double bedroom with timber external steps providing access to the exterior. The spacious principal bedroom is particularly impressive, bright and airy, with extensive storage and a stylish en-suite shower room. Overall, The Beeches offers the countryside good life with grounds extending to around 9 acres in total providing space for outdoor enjoyment, gardens and the paddocks for small animals. The equestrian aspect is perfect for those wanting their horses to live alongside them, including a view of the paddock from many windows within the house and the outbuilding having the provision for storage and stabling.AccommodationGround Floor: Entrance Vestibule, Open plan Sitting Room/Dining Room/Kitchen, Utility Room, WC, Family Room, Lounge, Inner Hallway, Second Bedroom with Ensuite Shower Room, Bedroom Three/ Gym, Bathroom.First Floor: Landing, Main Bedroom with Ensuite Shower Room, Bedroom Four.Garden Grounds & LandThe garden grounds offer a wonderful outdoor space with a large patio lying closest to the house. Areas of gravel additional to the tarred and gated driveway allow for additional parking or the manoeuvring of larger vehicles. There is also a double garage with electric doors, tack room and storage space. The fenced paddocks extend to around 7 acres and have hacking tracks surrounding. The whole site extends to around 9 acres. There is water and fencing to the paddocks. The sand school features silica sand, fibre and rubber chips.OutbuildingThe property has a double garage with an integral store and tack room. To the rear of the garage is the detached stable block with three loose boxes and a hay store/ shelter to the front.Potential AdditionsAs a registered smallholding the current owners were granted permission to build a large Steel framed agricultural building next to the sand school. Our current owner can discuss the plans they had drawn up by an architect if desired.ServicesMains Water and Electricity | Septic Tank | Oil Heating | The property is also fitted with photovoltaic panels.Keith Hall is a small, quiet yet desirable community just outside of Inverurie, a quiet but desirable area offering the peacefulness of country living yet minutes’ commute to more extensive amenities. The local primary school at Keith Hall is well thought of and it provides a good community hub. Inverurie itself has a range of primary and secondary schooling and provides good road and rail links to the north and south including to Aberdeen, Dyce, Huntly and Inverness. The train station at Inverurie is only a 5-minute drive or 15-minute cycle with easy parking. The amenities in and around Inverurie are excellent and these include a health centre, local hospital, several supermarkets, including Tesco & Marks & Spencer, a swimming pool and community centre nearby as well as golf and tennis. Mountain biking and hillwalking are a popular activity in the area given the many routes available including the incredible Bennachie. Aberdeen City is some 16 miles, and provides all the leisure, recreational and entertainment facilities expected from the city centre. Inverurie and Aberdeen itself provides good transport links with a mainline railway station available. There is a busy equestrian community within the vicinity of The Beeches. You are around 5 minutes’ drive from The Cabin Equestrian Centre & Riding Club, Ladyleys Equestrian Centre is around 15 mins drive and Ardmedden Equestrian which all provide training and competitions for all disciplines. The property is just approx. 30 minutes’ drive to Tillyoch Equestrian Centre and the new Bogenraith Equestrian which is Scotland’s premier purpose-built equestrian centre. Balmedie beach is just a short 20-minute drive from the property and is well known for excellent horse access with ample horse box parking and beautiful beach hacks along the open sands.