Tower Farm Steading

Torrance, Glasgow, East Dunbartonshire, G64 4DS

Offers Over £350,000

1.2 acres

  • CLOSING DATE 21ST JANUARY 2025 12 NOON
  • Stone built farmhouse and steading
  • Detailed planning consent for the refurbishment and extension of the farmhouse and the conversion and extension of the steading to form 3 residential units.
  • Property may suit developers and private individuals
  • Good accessibility
  • Approximately 1.20 acres

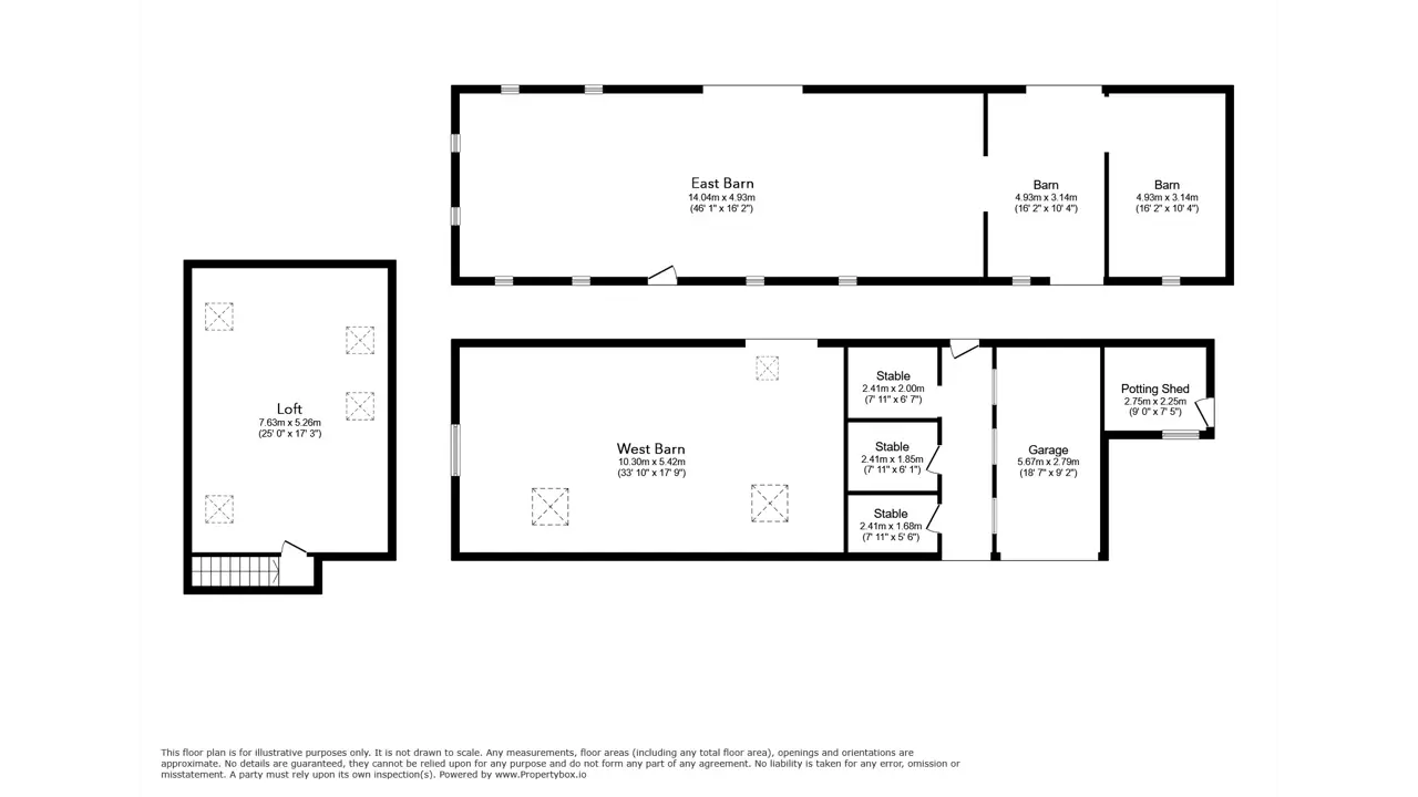
LOCATIONTower Farm dates back from the late 18th century and enjoys a quiet rural location to the west of the popular village of Torrance, which benefits from a range of amenities including, a local convenience store, a dentist, bakery, mobile post office, pharmacy and a primary school, with secondary schooling available at Boclair Academy in Bearsden. The property lies approximately 3 miles north of the town of Bishopbriggs which provides a range of local amenities, including Strathkelvin Retail Park, supermarkets, pubs, restaurants, banks, a medical centre and a train station with regular services to Glasgow Queen Street. The towns of Milngavie and Bearsden lie to the west and are both within easy driving distance. The city of Glasgow is located approximately 7 miles to the south and offers a wide range of facilities including, supermarkets, banks, national retailers, financial services, theatres and leisure facilities.The M80 motorway is just 4.5 miles to the south allowing swift access to Scotland’s Central Belt.DESCRIPTIONTower Farm benefits from an attractive elevated position with far reaching views and comprises a range of attractive traditional stone-built steading buildings and a farmhouse arranged around a courtyard. The buildings have the following floor areas;Farmhouse 1,867 sq.ft (173.49 sq.m)West Barn 1,412 sq.ft (131.25 sq.m)East Barn 1,078 sg.ft (100.17 sq.m)The buildings are accessed via a private track which leads from a minor public road to the west. The access track is owned by a third party with a right of access granted over it in favour of Tower Farm Steading.The property sits in a site extending to approximately 1.20 acres.PLANNINGThe subjects benefit from a minded to grant planning application, subject to the completion of a Section 75 agreement for the conversion and extension of the existing agricultural barns to form 3 dwellinghouses and the proposed refurbishment and extension to existing farmhouse and formation of associated access roads, ref: TD/ED/22/0047.We are of the view that the subject would also suit a private owner who could refurbish the farmhouse and utilise the steading buildings for their own purposes.We would recommend that any planning enquiries should be directed to:East Dunbartonshire Council12 Strathkelvin PlaceKirkintilloch, GlasgowG66 1TJT: 0300 123 4510DATA ROOMA data room has been set up with copies of the planning consent plans and elevations and associated surveys, the design and access statement and plans showing the location of onsite services. Please contact Galbraith for access.SERVICESMains ElectricityMains WaterPrivate DrainageIt is expected that any multi-unit development will require a new private drainage system.All necessary rights to lay service media will be granted over retained land and in particular over land to the north to connect to the Tower Burn.ASKING PRICEOur clients are seeking offers over £350,000 for their freehold interest in the subjects.Interested parties will be notified of any closing date and requested to submit an offer. Galbraith will issue the required form of offer to interested parties on notification of the closing date. The form of offer will include the minimum information required and timescales for completing the transaction.Additional land to the north of the subjects extending to approximately 1.80 acres may be available by separate negotiation. Please contact Galbraith for further information.LEGAL COSTSEach party will be responsible for their own legal costs incurred and the ingoing tenant will be responsible for the payments of LBTT, registration dues and VAT incurred there in.CLAWBACK/OVERAGEThe sellers will retain a clawback and will seek a percentage of uplift in value in the event planning consent is granted for additional residential units or development. Please contact the selling agents for further details.