Brecklate

Southend, Campbeltown, PA28 6PJ

Guide Price £495,000

2.95 acres

Bedroom Count icon 4

Reception Count icon 2

Bathroom Count icon 2

  • Immaculate, characterful farmhouse
  • Practical and spacious for contemporary living
  • Far reaching views over open countryside
  • Extensive range of outbuildings, suited to a variety of uses
  • Delightful, garden grounds
  • Grazing paddocks
  • Local services nearby
  • Acreage 2.95 acres (1.19 hectares)

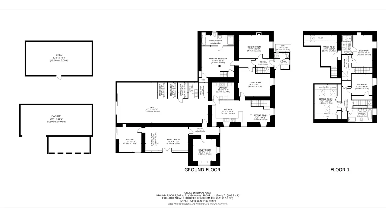
SITUATIONBrecklate offers a unique opportunity to acquire an outstanding, fully renovated farmhouse with a range of outbuildings in a delightful setting on the sought after Mull of Kintyre. The property enjoys an elevated position offering seclusion and privacy, with uninterrupted views over the surrounding countryside. Close to the property is the village of Southend with shop, medical centre and post office. There is also a café and 18-hole golf course enjoying a superb location on the Kintyre Peninsula. The internationally renowned Machrihanish Golf Course is also nearby.Within easy reach of the property is Campbeltown with its wide choice of services, including shops, schools, hospital, small cinema and leisure centre with swimming pool. It is also the home of several whisky distilleries including the famous Springbank. On the edge of the town is a large marina with berths for visiting yachts, chandlery and other services. As well as its unspoilt scenery, the area is known for its diverse wildlife and range of outdoor pursuits including walking, cycling, bird watching and riding. Close to Brecklate is the popular Wilder Ways Riding School offering a range of riding adventures.The property is situated within easy reach of the main road network. There is also an airport a few miles to the north offering daily services to Glasgow International Airport. In the summer months, a car ferry operates between Campbeltown and Ardrossan south west of Glasgow.DESCRIPTIONThe main farmhouse at Brecklate has been extensively renovated to create a stylish, spacious and practical family home. The property has been beautifully decorated throughout and is being offered in walk in condition. Brecklate includes 4/5 bedrooms, including a large ground floor bedroom with en-suite, originally the farm stables, with a delightful galleried mezzanine, ideal as a reading space, play area or as additional accommodation. Also on the ground floor is a sitting room/study and further room with wood burning stove, which could also be used as a bedroom. There is also a large utility room and cloakroom. The architect designed open plan kitchen dining living area provides a delightful, practical space to relax and entertain. From here is access to 2 first floor bedrooms and large bathroom. A further first floor bedroom with en-suite is reached via a dedicated staircase from the main hall. In recent years, Brecklate has operated as a successful Bed and Breakfast offering high end accommodation. With 2 bedrooms and a sitting room that can be used and accessed independently, the property is ideally suited for use in this way.Adjoining Brecklate to the rear is a substantial former stone byre. The building is now used as a garage, boot room and kennel with the option to create stables in one of the other outbuildings if required. From here is access to a ground floor office, originally the farm creamery, a conservatory and another utility room beyond. Solar panels have also been installed which benefit from a feed in tariff of approximately £600/per annum.GARDEN AND GROUNDSAn extensive and very pretty garden extends to the front of the property and includes a large area of lawn sloping down to a delightful orchard. To the rear of the property are two large paddocks. The western paddock immediately behind Brecklate includes a fenced off area with polytunnel and separate area with chicken run. The second paddock lies to the north and is accessed by crossing one of two pretty tree lined burns that run through the grounds where they mark the boundary.OUTBUILDINGSIn addition to the former byre, is an extensive range of outbuildings accessed via the courtyard to the rear of the property which also provides parking for several cars. These outbuildings include traditional stone farm buildings. More recent additions include a large, agricultural shed adjoining the former cow byre, which has been converted for equestrian use with the professional installation of 4 loose boxes. There is also an open fronted wood/hay store, separate stone shed with electricity, water and working forge and detached, large games room/stable/store. All the outbuildings have been well maintained and offer scope for use in a variety of ways.ACCESSBrecklate is accessed from the main road via a shared private drive leading to the rear courtyard. To the side of this drive is an access track owned by the neighbouring farmer.DIRECTIONSFrom Glasgow, take the A82 towards Loch Lomond. Take the turn onto the A83 signposted Campbeltown and continue along the coast road. In Campbeltown, follow signs for Southend and the B842. The property is situated about 3 miles north of Southend on the right hand side.POST CODEPA28 6PJWHAT3WORDSTo find this property location to within 3 metres, download and use What3Words and enter the following 3 words: https://w3w.co/unloaded.highs.maddeningSOLICITORSDM MackinnonBank of Scotland BuildingsObanArgyllPA34 4LNLOCAL AUTHORITYArgyll and Bute CouncilFIXTURES AND FITTINGSNo items are included unless specifically mentioned in these particulars.VIEWINGSStrictly by appointment with the Selling Agents.ANTI MONEY LAUNDERING (AML) REGULATIONSPlease note that under the 2017 AML regulations we are legally required to carry out money laundering checks against purchasers. Upon verbal acceptance of an offer, we require to identify the purchaser for Anti-Money Laundering purposes. Our service provider ‘First AML’ will contact the purchaser to gather the required identification documents. An information sheet is available from the Selling Agent on request. We are not able to enter a business relationship with a purchaser until they have been identified.Failure to provide required identification may result in an offer not being considered.AMC PLC FINANCEGalbraith are approved Agents for the Agricultural Mortgage Corporation (AMC) and we can assist you in securing finance loans for a variety of farming purposes including the purchase of land and property, restructuring debt, and to provide working capital for diversification, improving or erecting farm buildings. For further details and to discuss any proposals in confidence please contact Alistair Christie in our Galbraith Stirling office on 07500 794201. Email: alistair.christie@galbraithgroup.comIMPORTANT NOTES1 These particulars are intended to give a fair and overall description of the property. If any points are relevant to your interest, please ask for further information, prior to viewing. Prospective purchasers are advised to seek their own professional advice. 2 Areas, measurements and distances are given as a guide. Photographs depict only certain parts of the property. Nothing within the particulars shall be deemed to be a statement as to the structural condition, nor the working order of services and appliances. 3 These particulars shall not be binding on our clients whether acted on or otherwise, unless the same is incorporated within a written document, signed by our clients or on their behalf, satisfying the requirements of Section 3 of The Requirements of Writing (Scotland) Act 1995. 4 Closing Date - A closing date may be fixed. Prospective purchasers who have notified their interest through lawyers to Galbraith, in writing, will be advised of a closing date, unless the property has been sold previously. The Seller will not be obliged to accept the highest, or indeed any offer and has the right to accept an offer at any time or withdraw the property from the market. The Seller will not be liable for any costs incurred by interested parties. 5 Offers - Formal offers in the acceptable written Scottish Legal Form should be submitted to the local Galbraith office per these sale particulars, through a Scottish Lawyer, confirming; if an offer is in relation to the whole, or a specific lot, or a combination of lots, and if the offer is subject to the sale of a property, together with proof of funding and Identification. 6 Third Party Rights and Servitudes The subjects are sold together with and subject to all existing rights of way, servitudes, wayleaves and others whether contained in the Title Deeds or otherwise, and purchasers will be deemed to have satisfied themselves in all respects thereof. 7. Photographs taken in July 2023 and sales details prepared in July 2023.