Restenneth

Golf Road, Northmuir, Kirriemuir, Angus, DD8 4PY

Offers Over £385,000

Bedroom Count icon 4

Reception Count icon 3

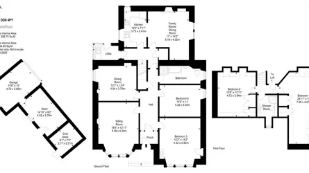
  • 3 reception rooms. 4 bedrooms
  • Well proportioned and flexible rooms
  • Tarmac drive and detached garage
  • Well tended garden with lawn, borders and vegetable patch
  • Convenient setting within easy reach of Forfar, Blairgowrie, Perth and Dundee

SITUATIONRestenneth lies on the edge of the much sought after town of Kirriemuir in the county of Angus. Kirriemuir provides a superb range of day to day amenities including a supermarket, primary and secondary schooling, medical, dental and veterinary practices, as well as cafes, pubs and restaurants. Forfar, about 7 miles south east, and Blairgowrie, 15 miles south west both are within easy reach and provide a greater selection of comprehensive facilities. Dundee is the closest city lying 19 miles to the south and provides two universities, an airport with daily flights to London and an extensive range of national retailers together with the V & A Museum, Olympia swimming pool and Discovery Point where RRS Discovery is on permanent display. Perth, known as the “Fair City”, can be reached in about an hour’s journey by car to the south west with national retailers, banks restaurants, concert hall, theatre, cinema, railway station, leisure centre and ice rink. Angus offers a breadth of recreational opportunities and Restenneth is ideally placed to make the most this vibrant county has to offer. The nearby Angus Glens provide a myriad of walking and cycling trails and a number of Munros all within easy reach. For the golfer, the Kirriemuir Golf Course is within walking distance and courses can also be found in Forfar, Alyth and Blairgowrie.DESCRIPTIONRestenneth is a most attractive traditional property of sandstone construction under a pitched slate roof and lies in a quiet scenic setting on the outskirts of Kirriemuir. Restenneth has been in its current ownership and used as a family home for nearly 30 years with period features throughout such as wooden panelled doors, cornicing, woodburning stove and open fire in the dining room. On entering, the entrance vestibule, with stained glass window above allowing ample light, and a spacious entrance hall leads to the flexible reception spaces. The lounge benefits from a large bay window with attractive sash-and-case frames. The adjacent dining room is of a generous size making this the perfect space to host friends and family. The open plan kitchen / dining / sitting room is the heart of the home with woodburning stove making this a very cosy and welcoming room. The ground floor is complete with two bedrooms, one with a cupboard and sink, as well as a family bathroom and utility room with access into the garden. A staircase leads to the first floor which comprises two generous bedrooms both with integrated wardrobes, a shower room and an attic room which offers exceptional storage space.ACCOMMODATIONGround Floor: Entrance Vestibule, Entrance Hall, Sitting Room, Dining Room, Kitchen / Sitting / Dining Area, Utility Room, Bedroom, Principal Bedroom with Sink, Family Bathroom.First Floor: Shower Room, 2 Bedrooms, Attic Room.GARDENRestenneth sits within an established garden which wraps around the property resulting in a most attractive backdrop. The front and rear gardens are laid to lawn complemented with well-tended borders which results in superb structure and interest throughout most of the year. In addition, there is a vegetable patch to the west, a patio area perfect for outdoor dining as well as a potting shed and timber garden shed. A tarmac driveway leads to a parking area to the east and there is a detached single garage to the west of the property which can be accessed via the adjacent Cortachy Road. Attached to the garage is a coal/wood store and an additional shed providing excellent storage and space for avariety of uses.