Wester Kirkton

Kirkton of Balmerino, Newport-on-Tay, Fife, DD6 8SA

PCM £2,250

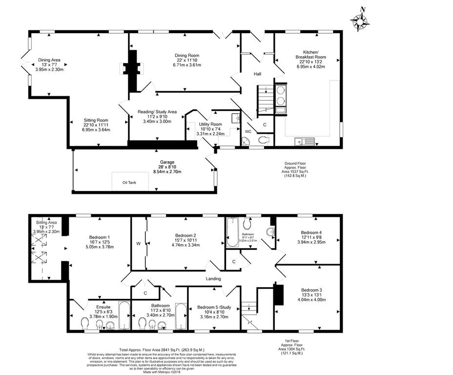
Bedroom Count icon 5

Reception Count icon 3

Bathroom Count icon 3

  • ** PART FURNISHED **
  • Landlord Reg No: 232800/250/12131
  • Energy Performance Rating EPC: D(60)
  • Council Tax Band G
  • Viewing can be requested by clicking - Request Details / Request Viewing.

Stunning detached PART FURNISHED five bed property in a tranquil setting on the banks of the River Tay.Entrance Hall, Sitting room, Dining room, Office Area, Dining Kitchen with AGA (oil), Utility room, Cloakroom, 3 Bathrooms, 5 Bedrooms (1 en-suite). Part Furnished, Available NowPets considered with additional deposit.The property is heated with oil central heatingRent £2,250 pcm Deposit: £2,250 EPC: D(60)Please note that the garage is where the oil tank is stored therefore can be used for storage but will not accommodate a vehicle.GENERALWester Kirkton sits in a lovely position on the edge of the river Tay with views out over the River Tay and the Perthshire and Angus hills. The Fife Coastal Path leads through Balmerino, with the route situated along the boundary to the property and leading down to the adjacent beach.The property is well positioned with access to Dundee, Cupar and St Andrews, with Perth, Aberdeen and Edinburgh also within comfortabledriving distance via the main M90 motorway network. Good local services are available in Gauldry, Wormit and Newport-on-Tay with all of Dundee’s facilities and amenities on hand across the River Tay. Cupar, Fife’s bustling county market town, lies 10 minutes drive to the south and offersan excellent range of shops and services, as well as a thriving monthly farmers market, whilst the ancient and historic town of St Andrews, globallyacclaimed as the home of golf, lies about 13 miles to the south east.There are several good state primary and secondary schools in the area, with independent schooling on hand at a number of highly rated schools, including St Leonard’s at St Andrews and The High School ofDundee. There are railway stations in Leuchars, Cupar and Dundee, whilst Edinburgh international airport lies approximately one hour to the south by road. The growing regional airport at Dundee offers an ever increasing number of short haul flights.