Adderstone Mains Farm

Belford, Northumberland, NE70 7HS

Guide Price £5,125,000

397.02 acres

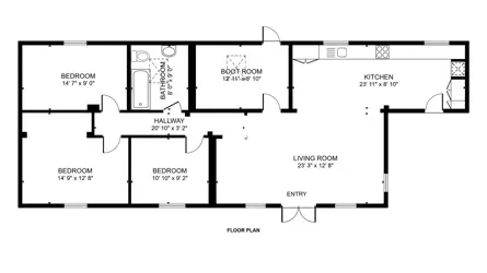
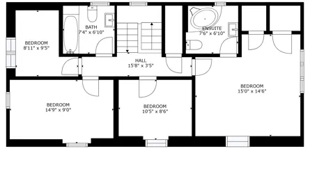
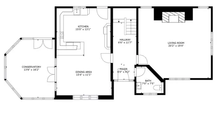
CLOSING DATE FOR OFFERS: 12 NOON ON WEDNESDAY 4TH OCTOBER 2023DESCRIPTIONAdderstone Mains Farm is a highly productive, mainly arable holding extending to around 397.02 acres (160.67 ha) situated on the edge of the North Northumberland Coastal Plain, an area known for the high quality of its farmland and yield potential for combinable crops.The farm lies between 30m and 83m above sea level and enjoys good access from north and south. The farm slopes gently down to the east, meaning that it enjoys striking views of Budle Bay and other parts of the Northumberland Heritage Coast.Belford, with its well known Coastal Grains co-operative grain facility, lies around 2 miles to the north, with Alnwick around 13 miles to the south. Berwick upon Tweed, with its wide range of services, including commercial grain handling facilities, maltings and Berwick Dock, is around 17 miles to the north. The farm is well shaped and easily accessed via the A1 Road, which forms the western boundary of the holding.The farm includes Chapeltrees, a four bedroomed farmhouse enjoying sweeping views to the east.Budle View, a further dwelling of log cabin construction, is located towards the centre of the farm. In addition, planning consent has been obtained for a further, four bedroomed farmhouse nearby. A particular feature of the farm is the excellent farmstead, which is centrally located on a virtually level site and which includes a range of entirely modern buildings, including a number of general purpose buildings and specialist pig accommodation.Adderstone Mains Farm is a rare property in being known for its productivity and yield potential, but also enjoying an attractive aspect and high degree of amenity. TENUREThe property is freehold and is offered for sale as a whole or in lots with vacant possession by arrangement.CHAPELTREESChapeltrees is an attractive, stone built detached house with sweeping rural views south and east towards the majestic Northumberland coastline and pretty coastal villages. Built in 1993 as a Potton timber framed house, Chapeltrees offers a wealth of attractive features, making this a practical family home. Owing to the proximity of the coast, Chapeltrees would also suit those looking for a holiday investment opportunity or a second home and weekend retreat.A spacious and welcoming reception hall provides access to the main reception rooms. The triple aspect living room has a solid fuel stove inset into a brick inglenook fireplace and feature exposed beams. The spacious kitchen is well fitted with a comprehensive range of wooden units and opens into a cosy sitting area. Double doors lead into the conservatory / dining room with access into the garden. The ground floor accommodation also has a useful cloakroom. On the first floor there are four well-proportioned bedrooms with the principal bedroom enjoying an en-suite bathroom in addition to a separate family bathroom.Chapeltrees sits within spacious grounds extending to around 1.53 acres (0.62 ha), made up of gardens and an attractive woodland area which offers shelter, screening and wildlife interest. The garden has been laid mainly to lawn with some shrub surrounds and has a gravel car parking and turning area. It includes an attractive orchard with cherry, plum, hazel and apple trees and a garden outbuilding with electricity supply and a lean-to log store.The house has electric central heating, a burglar alarm system and is fully double glazed.EPC: Rated DBUDLE VIEWBudle View is of log-cabin construction and was built in 2022 in a slightly elevated site approximately 50m south of the farm buildings, and enjoys excellent views to the east and north east. The accommodation includes a large open plan living, kitchen and dining area with fitted kitchen, three bedrooms, boot room/utility room and a family bathroom. There is a covered, external verandah area with extensive coastal views. Budle View has oil fired, underfloor heating and high levels of energy efficiency. FARMHOUSE PLANNING CONSENTPlanning permission was obtained by the Vendor for the construction of a detached, two storey, four-bedroom dwelling house and a three-bedroom mobile log lodge on 21st May 2020 under Northumberland County Council Planning Reference 19/03707/FUL.Although the construction of the farmhouse itself has not yet been commenced, the three-bedroom mobile log lodge (now known as Budle View) was constructed and has been occupied since December 2022.In addition, joint drainage facilities have been installed.Plans of the proposed farmhouse are available from the selling agents on request. The farmhouse was designed to make the most of the outstanding position and the coastal views. Entry will be from the north at mezzanine level with stairs leading to ground floor and first floor accommodation respectively.The accommodation, which will extend in total to approximately 253 sq m GIA, will comprise:On the ground floor: living room; master bedroom with en-suite shower room; second bedroom with en-suite shower room; two further bedrooms; family bathroom.On the first floor: utility room; landing; office; w.c; extensive open-plan living/dining room area with two feature windows affording panoramic views. FARM BUILDINGSThe main farmstead is centrally located on a virtually level site and has been newly constructed since 2005. The buildings comprise:Building 1:6-bay, steel portal framed building (36.60m x15.0m) Having concrete panel walls with box profile sheeting to eaves level and a fibre cement roof. Concrete floor. This building serves for machinery and implement storage, and as a workshop. There is a 2 bay, steel framed lean-to (12.20m x 5.0m) and a further lean-to (12.20m x 5.0m) incorporating a roller shutter door and serving as a wash down area.Building 2:Adjacent, 6-bay steel portal framed building (36.60m x 24.0m). Having box profile roof, concrete panels to gables with steel sheeting over. This building serves as a straw/hay store and there is a solar PV panel array to the southern roof pitch.Building 3:10-bay, steel portal framed pig building (76.70m x 15.30m) Having concrete panel walls to circa 2m under a corrugated fibre cement roof. With central raised gantry/walkway. The building is divided into 20 pens. This is built as a push-through pig fattening unit to BQP design standards with fully automated feed and bedding systems and an automated galebreaker ventilation system. It includes 1,000 pig places from weaner stage to finishing. Automatic operation is via the Ventlogic 1 Series.Building 4:Pig Building of almost identical design and dimensions as Building 3.Building 5:8-bay, steel portal framed building (48m X 21.30m) Having prefabricated concrete panel walls with box-profile steel sheeting over and a fibre cement roof. Serving as covered manure store. To the west of Building 3 there are three Collinson steel feed bins.Building 6:4-bay steel portal framed building (24m x 15m) (within Lot 3). Having concrete panel walls with steel sheeting over and a steel sheet roof, with a roller shutter door. This building serves as a store for grain, hay, straw or baled silage. In the main farmstead, there are extensive concrete and hardcore surrounds. Three Phase electricity is led to this site.Note that the Omex liquid fertiliser tanks are excluded from the sale. FARMLANDThe land includes approximately 382 acres of arable/ploughable grassland, and around 0.69 acre of permanent pasture. There are around 14.16 acres of yards and miscellaneous areas.The land lies either side of the East Coast Main Line Railway, and is laid out in 8 main parcels, with size and shape being ideal for modern machinery and farming techniques. In the main, the land comprises a free working, freely drained, sandy clay loam and has consistently produced high yields of combinable crops. In 2015, average wheat yields were 5.30 tonnes/acre.All of the fields are accessible directly off hard tracks, with Lot 3 (parcels 9646 and 9639) reached primarily from the Mousen – Outchester public road, and then via a length of hardcore trackway. In addition, an underpass beneath the railway allows smaller vehicles to pass between Lots 2 and 3.FARMING SYSTEMIn recent years, a more regenerative farming approach has been adopted. The combinable cropping has been complemented by the introduction of rotational grass and a sheep enterprise, as well as the use of legume fallows and other cover crops under the Countryside Stewardship Scheme.A bed & breakfast pig operation is run, with up to three batches of up to 2,000 weaners reared to finishing weight each year. This produces an annual income of around £70,000, with the resultant manure applied to the land, providing great benefit to soil health and savings in purchased fertiliserWOODLANDThere are a number of small copses on the farm, being mainly mixed broadleaved woodland of considerable visual, wildlife and environmental interest. The woodland is complemented by a pond within parcel 5631. ENVIRONMENTAL AND WOODLAND SCHEMESThe farm is currently subject to a Higher-Tier Stewardship Agreement which commenced on 1st January 2021. Under this, a great deal of re-fencing and hedgerow restoration has taken place. In addition, approximately £36,460 is received annually in respect of management items, the principal options including legume fallows and low-input cereals.It is a condition of sale that this scheme will be taken over by the purchaser, who will be responsible for observing the rules of the scheme until its expiry.Any payments relating to the 2023 claim year will be retained by the Vendors. INGOING VALUATIONThe purchaser(s) of Adderstone Mains shall, in addition to the purchase price, be obliged to take over and pay for the following:1. All cultivations and growing crops on a seeds, labour, lime, fertilisers, spray and machinery basis with an increment representing the enhanced value of the establishment and age of such crops.2. All hay, straw, fodder, roots, silage and farmyard manure and other products at market value.3. All oils, fuels, fertilisers, sprays, chemicals, seeds and sundries at cost. Note: If the amount of the valuation has not been agreed on the date fixed for completion, then the purchaser shall pay to the seller such a sum as the selling agents shall certify on account of the valuation pending agreement. Should the payment not be made within 7 days then the interest will become payable on outstanding monies at 8% over the Bank of Scotland borrowing rate.The valuation will be made by two Valuers, one representing the Vendors and the other the Purchaser. Failing agreement between the Valuers, the valuation will be referred to the decision of a single arbitrator to be appointed by mutual agreement and, failing agreement, by the President for the time being of the Royal Institution of Chartered Surveyors. Each party will be responsible for meeting its own valuation costs. METHOD OF SALE AND LOTTINGThe farm is offered for sale by a private treaty as a whole, or in any combination of three lots, as follows:LOTTINGLot 1:Chapeltrees and grounds 1.53 acres (0.62 ha).Lot 2:298.65 acres (120.86 ha) including the main farmstead, Budle View and proposed farmhouse site.Lot 3:96.84 acres (39.19 ha) including Building 6 and all land situated to the east of the railway line. RESTRICTIVE AGREEMENTSA Scheduled Ancient Monument (Roundabouts Camp) is situated within parcel 0923 (SAM Reference: 12226/1). The entirety of Adderstone Mains lies within a Nitrate Vulnerable Zone (NVZ). The disused lime kiln to the north of Chapeltrees is Grade II Listed.The entirety of the land, excluding Chapeltrees and that part of Lot 2 hatched on the plan, is subject to a restrictive covenant in favour of Northumberland Estates limiting use to agricultural purposes. Further details are available from the selling agents.Use of the green-coloured trackway serving Lot 3 is limited to use for agriculture. Under Planning Consent Ref: 19/03707/FUL, the proposed farmhouse is limited to occupation by a person solely or mainly employed, or last employed, in the locality for agriculture as defined in Section 336 of the Town and Country Planning Act 1990, or a dependent of such a person residing with him or her, or a widow or widower of such a person.Under the same planning consent, Budle View shall be used “as accommodation ancillary to the main dwelling house as an agricultural worker’s dwelling or for holiday purposes only and shall not be occupied as a separate independent dwelling. Where the property is let out for holiday use, the operators of the site shall maintain an up to date register of all lettings that should be made available for inspection by an authorised officer of the council” BOUNDARIESBoundaries are made up of fences and walls; there has been considerable new fencing and hedging undertaken in recent years. SERVICESMains water via a private line. A separate private water supply also exists.Private drainage: septic tank to Chapeltrees and separate sewage treatment plant serving Budle View and proposed new farmhouse.Mains electricity (Three Phase to main farmstead). Electric central heating to Chapeltrees. Oil fired central heating to Budle View. Further details are available on request from the selling agents.SPORTING, TIMBER AND MINERAL RIGHTSAll sporting rights, fallen and standing timber are included in the sale in so far as they are owned. Mineral rights are excluded from the sale. RIGHTS OF WAY, EASEMENTS AND WAYLEAVESThe Property is being sold subject to the benefits of all rights including: rights of way, whether public or private, light, support, drainage, water and electricity supplies and other rights and obligations, easements and quasi-easements and restrictive covenants and all existing and proposed wayleaves for masts, pylons, stays, cables, drains, water and gas and other pipes whether referred to in these particulars or not.Although a minor, unclassified public road gives access to much of the farm, there are no public rights of way crossing the property.A number of electrical cables traverse the property and an annual payment of around £425.85 is currently received in relation to these. ENTRYThe date of entry will be by mutual agreement.LOCAL AUTHORITYNorthumberland County Council, County Hall, Morpeth, Northumberland, NE61 2EFVIEWINGSViewings are strictly by prior appointment and only through the selling agents, Galbraith, Morpeth on 01670 331500.HEALTH & SAFETYThe Property is an agricultural holding and appropriate caution should be exercised at all times during inspection.Photographs prepared May 2023Sales particulars prepared August 2023