2 Ritton White House Cottages

Netherwitton, Morpeth, Northumberland, NE61 4PP

Asking Price £200,000

Bedroom Count icon 2

Reception Count icon 1

Bathroom Count icon 1

  • 2 Bedrooms
  • 1 Reception Room
  • Kitchen
  • Utility
  • Bathroom/WC
  • Garden
  • Off Street Parking
  • Beautiful Rural Location
  • Outstanding Views
  • Traditional Building with scope for conversion

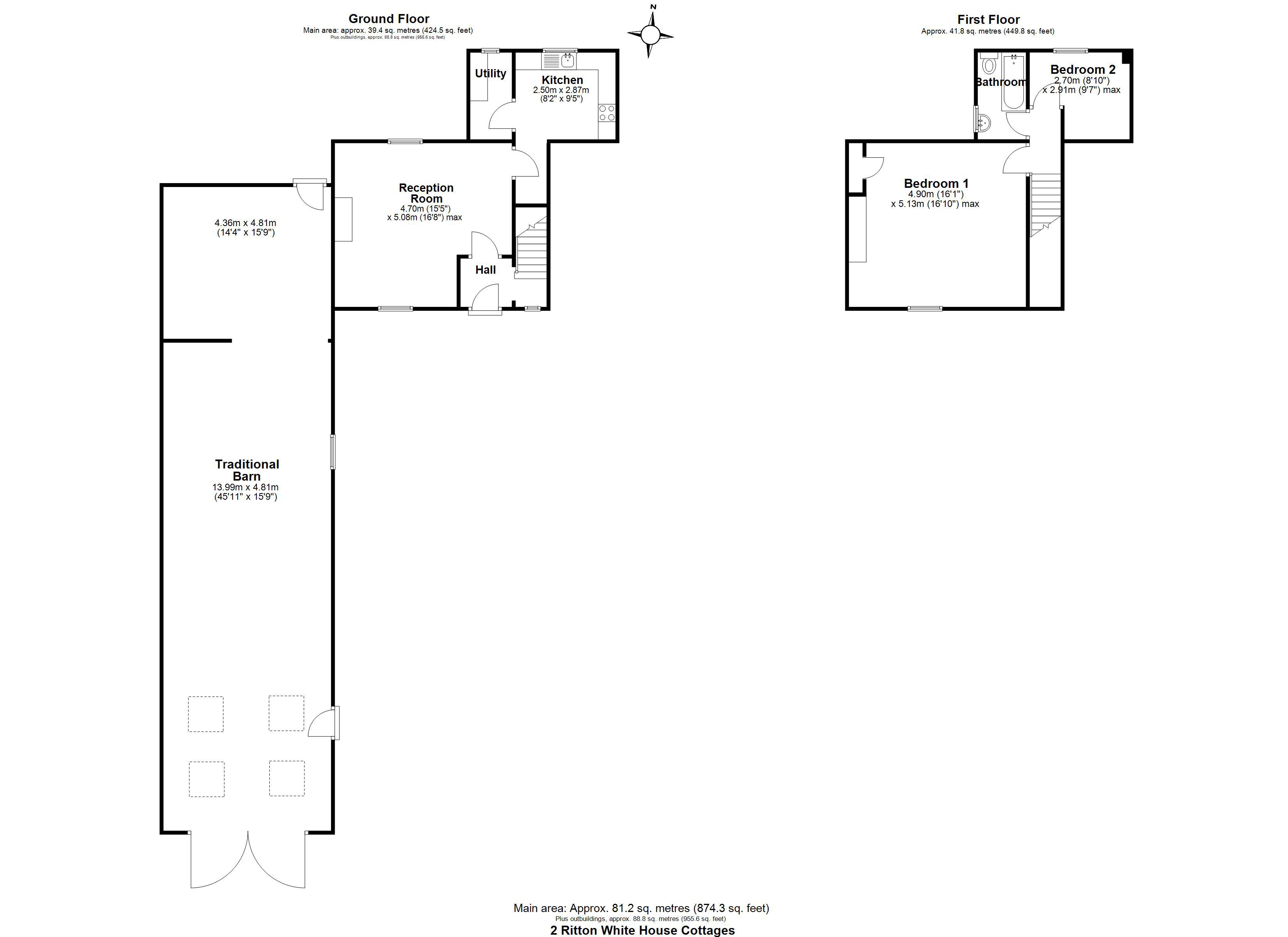
THE PROPERTYA pretty house set within a range of beautiful rural Northumbrian former farm buildings close to Fontburn Reservoir. The cottage occupies an elevated site with fabulous south facing rural views over the surrounding countryside. This stone-built property offers well laid out and practical living space. The layout on the ground floor includes aliving room with outstanding views over the garden to the rolling countryside beyond. To the rear there is a recently fitted kitchen with a good range of units and also a useful utility room.To the first floor there are two bedrooms. The bedroom to the front is a double with captivatingviews to the south while the smaller bedroom to the rear has a stunning outlook to the north. There is a family bathroom on the first floor.OUTSIDETo the south of the property there is a fenced garden, mainly laid to lawn and space to park cars. A large adjoining traditional outbuilding offers scope for development subject to the necessary permissions being obtaned. The western boundary is set away from the building, providing further scope for the conversion of the outbuilding and amenity space overlooking the view.LOCATIONThe property occupies an unspoilt rural position at the end of a long farm track within a range oftraditional former farm buildings and cottages. The former farm sits amongst the rolling Northumberland countryside with breathtaking views of the Simonside hills and Fontburn Reservoir. The market town of Rothbury lies approximately 6 miles to the north, with a selection of shops and amenities,including aconvenience store, several independent retailers and a choice of cafes and pubs. The town also has a primary school and a middle school with a first school at the nearby village of Cambo. Further facilities can be found in Morpeth, approximately 13 miles away including larger supermarkets and awider choice of high street and independent shops. This is a truly wonderful setting rich in wildlife anda superb location for outdoor pursuits. The national park just moments away, while golf is available nearby at Rothbury Golf Club. Road connections in the area include the A697 and the A1, while Morpeth has a mainline station, providing services to Newcastle upon Tyne and beyond.The nearby countryside is home to some of the region's outdoor leisure gems. The rich rural surroundings within Northumberland include Cragside, Brinkburn Priory and Wallington Hall, while some of the country's finest natural beauty spots including the Northumberland National Park and the dramatic Northumberland Coastline, are a short drive away.DIRECTIONSFrom Scots Gap, take the Rothbury Road northward and after approximately 5 miles and just north of the entrance to Fontburn Reservoir, turn left at the crossroads onto a single track road signed private road (the only road sign shows Ritton and Coltpark to the right). Follow the private driveway to the farm, keeping left initially. Take the right fork when the farm is in sight up the hill and 2 Ritton White House Cottages is thewesternmost cottage.MILEAGESScots Gap 6 miles | Rothbury 6.5 miles | Morpeth 13 milesWHAT THREE WORDSwand.slower.linenGENERALServices: Mains electricity. mains water supply via a private water pipe. Shared septic tank located outside the property. It is believed that the septic tank is compliant with the General Binding Rules. Oil central heating.Internet: High speed internet is available via Alncom.Access: Shared private drive. Pro-rata maintenance.Local Authority: Northumberland County CouncilTenure: Freehold Postcode: NE61 4PPCouncil Tax: Band BEPC: Rated EVIEWINGStrictly by appointment with Galbraith Hexham office Tel: 01434 693693 Email: hexham@galbraithgroup.comAGENTS NOTESThe neighbouring farm buildings are subject to current planning applications.The purchaser will need to erect and maintain aboundary around the area to the North and West.ANTI MONEY LAUNDERING (AML) REGULATIONSPlease note that under the 2017 AML regulations we are legally required to carry out money laundering checks against purchasers. To enable us to complete these checks purchasers will need to provide along with their offer either: a) originals of primary (e.g. a passport) and secondary (e.g. current council tax or Utility bill) or b) copies of the same certified and dated by appropriate professional. Failure to provide this information may result in an offer not being considered.IMPORTANT NOTES1. These particulars are intended to give a fair and overall description of the property. If any points are relevant to your interest, please ask for further information prior to viewing. Prospective purchasers are advised to seek their own professional advice. 2 Areas, measurements and distances are given as a guide. Photographs depict only certain parts of the property. Nothing within the particulars shall be deemed to be a statement as to the structural condition, nor the working order of services and appliances. 3 The Seller will not be obliged to accept the highest, or indeed any offer and has the right to accept an offer at any time or withdraw the property from the market. The Seller will not be liable for any costs incurred by interested parties. 4 If there are matters of particular importance please raise this with us and we will try to check the information for you. Particulars prepared March 2026. Photographs taken August 2025.