High Lilswood

Steel, Hexham, Northumberland, NE47 0JD

Guide Price £900,000

13.3 acres

Bedroom Count icon 4

Reception Count icon 2

Bathroom Count icon 2

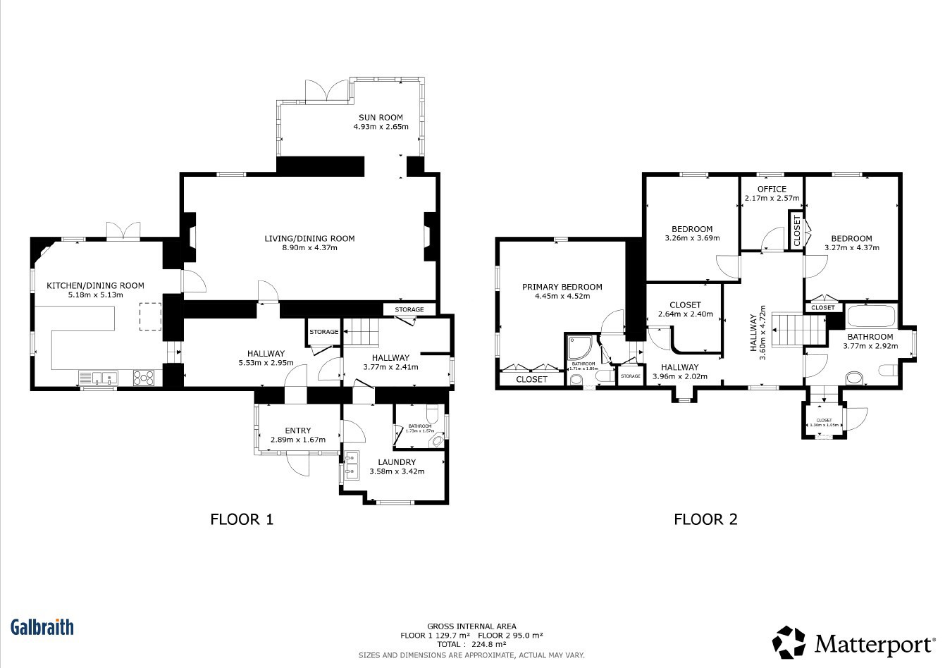
  • 3 Bedrooms
  • 2 Bathrooms (one en-suite)
  • Office/bedroom 4
  • Dining kitchen
  • Living room
  • Garden room
  • Boot room/laundry
  • Cloakroom
  • Extensive range of traditional buildings
  • Especially pretty garden
  • Paddocks
  • Pond
  • Woodland
  • Imperial view
  • About 13 acres

The PropertyHigh Lilswood is a beautiful stone built detached farmhouse in an idyllic rural location set against a backdrop of breathtaking panoramic views that stretch across rolling hills and open skies. As a place to live, High Lilswood is difficult to beat.The house is well proportioned and has been well looked after. There is a pretty garden, an impressive range of traditional farm buildings including stabling, along with approximately 13 acres of land including paddocks and woodland. The home beautifully blends timeless character with contemporary design, featuring original stonework, exposed wooden beams, and large windows that flood the interior with natural light. Inside, modern details complement the rustic charm.An entrance porch opens into the impressive reception hall where sleek polished oak flooring extends into a welcoming dining kitchen. The kitchen has a log burner, a Rangemaster cooker and a freezer. It is fitted with an excellent range of shaker style units with smart work tops while the living and dining area includes a log burner.The generous living room includes space for formal dining as well as comfortable seating before the raised feature fireplace with stove. The garden room has large windows which frame views of the garden and the heathery hills beyond while under floor heating provides both warmth and comfort. A useful laundry/boot room and cloakroom complete the ground floor accommodation.There are three bedrooms on the first floor. The main bedroom includes an en-suite shower room, whilst the second and third bedrooms share the house bathroom which is fitted with a bathroom suite including a jacuzzi bath and underfloor heating. A dedicated office might be used as a fourth bedroom and there is a useful walk-in linen cupboard.OutsideHigh Lilswood is set in a beautiful position amid glorious countryside which is known locally as the Hexhamshire. The house is approached over a long private drive which culminates at a spacious parking area, with plenty of options for additional parking or storage available in and around the outbuildings. There is a productive kitchen garden and greenhouse in a sheltered enclosure.The garden features a paved terrace, a lawn, water feature, and a significant pond. The paddocks and woodland provide about 13 acres of terrific amenity space. The outbuildings provide potential for a wide variety of uses (subject to necessary consents) and include useful storage space, stables, tack room, feed store, games room and workshop. The property is located within the North Pennines Area of Outstanding Natural Beauty.LocationThe Hexhamshire is a peaceful, rural area situated south of Hexham and west of Slaley; it combines seclusion and privacy and all the attractions of rural life with the benefit of being just a few miles from the attractive market town of Hexham. The beautiful surrounding area provides walks and other country pursuits. To the north of the property is Whitely Chapel which benefits from a highly regarded first school, a village hall and St Helen’s church. The Dipton Mill is the closest public house which has a traditional country pub atmosphere with locally brewed ales and charming features. It is only about 9 miles south of Hexham which is connected to Newcastle by dual carriageway and a rail link. Hexham has a wide variety of shops, a weekly market and several large supermarkets, as well as a choice of cafés, restaurants and pubs. There are plenty of local facilities, including Wentworth Leisure Centre, Hexham Racecourse, and golf available at Hexham and Tynedale Golf Clubs. Hexham has several excellent schools including Queen Elizabeth HighSchool. Mowden Hall school is an easy commute - a popular pre prep and prep school for children 3yrs to 13yrs old.DirectionsDrive to Whitley Chapel and then drive south out of the village signposted Lilswood, keeping the church on your left. After approximately 3 miles turn left onto the lane before the cattle grid. The drive for High Lilswood is on the left after a shortdistance.Postcode: NE47 0JD - Please note that the post code is not very useful for the last part of the journey in sat nav. ///What 3 words is a better navigation tool in this instance.amber.bandwagon.gatesGeneralThere is no onward chain.ServicesMains electricity is connected with the advantage of solar panels providing an income from the Feed in Tariff. Private water supply, foul drains to a septic tank within the boundary, oil fired central heating.TenureFreeholdPublic right of wayA public footpath crosses the property.Local AuthorityNorthumberland County CouncilCouncil TaxBand DEPCRated CViewingStrictly by appointment only with Galbraith 01434 693693hexham@galbraithgroup.comAnti Money Laundering (AML) Regulations: Please note that under the 2017 AML regulations we are legally required to carry out money laundering checks against purchasers. To enable us to complete these checks purchasers will needto provide along with their offer either: a) originals of primary (e.g. a passport) and secondary (e.g. current council tax or Utility bill) or b) copies of the same certified and dated by appropriate professional. Failure to provide this information may result in an offer not being considered.IMPORTANT NOTES: 1. These particulars are intended to give a fair and overall description of the property. If any points are relevant to your interest, please ask for further information prior to viewing. Prospective purchasers are advised to seek their own professional advice. 2. Areas, measurements and distances are given as a guide. Photographs depict only certain parts of the property. Nothing within the particulars shall be deemed to be a statement as to the structural condition, nor the working order of services and appliances. 3. The Seller will not be obliged to accept the highest, or indeed any offer and has the right to accept an offer at any time or withdraw the property from the market. The Seller will not be liable for any costs incurred by interested parties. 4. If there are matters of particular importance please raise this with us and we will try to check the information for you. Particulars prepared April 2026. Photographs taken April 2026.