Garden House Farmhouse & Cottage

Garden House Bank, Acomb, Hexham, Northumberland, NE46 4RF

Guide Price £650,000

Bedroom Count icon 4

Reception Count icon 3

Bathroom Count icon 3

  • Farmhouse
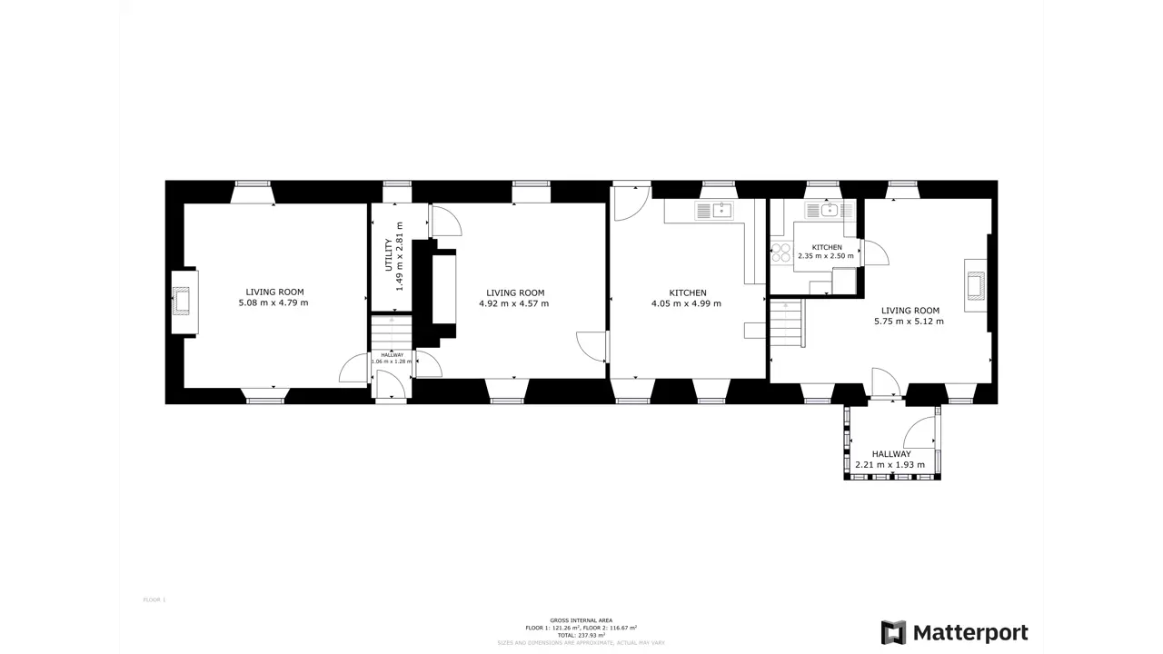
  • 3 bedrooms
  • 2 reception rooms
  • Kitchen diner
  • Utility area
  • Family bathroom and en-suite
  • Generous Garden
  • Traditional outbuildings
  • Cottage
  • 1 bedroom
  • Bathroom
  • Living room
  • Kitchen

PROPERTYGarden House Farm presents an exciting opportunity, perhaps to create a multi-generational living space with a range of traditional outbuildings providing a wealth of opportunities.The plot currently consists of the farmhouse with 2 fine reception rooms, each with an ingle nook fireplace and kitchen diner on the ground floor, there are 3 double bedrooms (1 en-suite) and a family bathroom on the first floor. The adjoining cottage, at the east end of the range provides space for a dependent relative, a possible income stream or even an extension of the main house, subject to the necessary consents. The loft space of one of the outbuildings has been converted into and excellent office space.OUTSIDEThere is a large gravel driveway and private courtyard as well as a south facing garden with generous views over the countryside. There are seven traditional outbuildings to the south and east of the homes. LISTINGThe farmhouse and cottage are listed Grade II as being of historic importance.LOCATIONAcomb is a picturesque village in a rural setting with a good range of day-today amenities. There is an excellent nursery and primary school, three pubs, a takeaway and post office. The beautiful surrounding area provides walks and other country pursuits, with golf courses, sports clubs and Hexham racecourse within easy reach. Newcastle city centre provides more extensive cultural, educational, recreational and shopping facilities. The property enjoys excellent communication links with the nearby A69 giving access to surrounding villages and towns. The beautiful Northumbrian heritage coastline and Newcastle lie to the east and Carlisle and the Lake District to the west. Easy onward access leads to the A1, A1(M) and M6 and Newcastle International Airport is also easily accessible. Hexham station offers regular cross-country services linking to other mainline services to major cities including London. OVERAGEThe property is being offered for sale subject to development value covenants (overage) relating to increases in value arising in connection with the grant of planning permission for change of use or increasing the quantity of dwellings on the site. The specific details will be dealt with under the legal documentation. GENERALServices: Mains water, drainage and electric are connected. Oil fired central heating. Post Code: NE44 6HW What 3 Words: charm.rejoined.stability Tenure: Freehold Local Authority: Northumberland County Council EPC: Farmhouse & Cottage: Rated ECouncil Tax: Farmhouse Band ECottage Band A VIEWINGSStrictly by appointment with Galbraith Hexham Tel: 01434 693693 Email: hexham@galbraithgroup.comIMPORTANT NOTES1. These particulars are intended to give a fair and overall description of the property. If any points are relevant to your interest, please ask for further information prior to viewing. Prospective purchasers are advised to seek their own professional advice. 2 Areas, measurements and distances are given as a guide. Photographs depict only certain parts of the property. Nothing within the particulars shall be deemed to be a statement as to the structural condition, nor the working order of services and appliances. 3 The Seller will not be obliged to accept the highest, or indeed any offer and has the right to accept an offer at any time or withdraw the property from the market. The Seller will not be liable for any costs incurred by interested parties. 4 If there are matters of particular importance please raise this with us and we will try to check the information for you. Particulars prepared July 2025. Photographs taken July 2025.