Goodwell Farm

Goodwell Field, Brancepeth, Durham, DH7 8DN

Asking Price £1,300,000

1.5 acres

Bedroom Count icon 5

Reception Count icon 4

Bathroom Count icon 5

  • Striking five bedroom principal house
  • Appealing two bedroom Cottage
  • Stables, barn and good storage buildings
  • Gardens and paddocks
  • In all about 1.5 acres
  • For sale as a whole

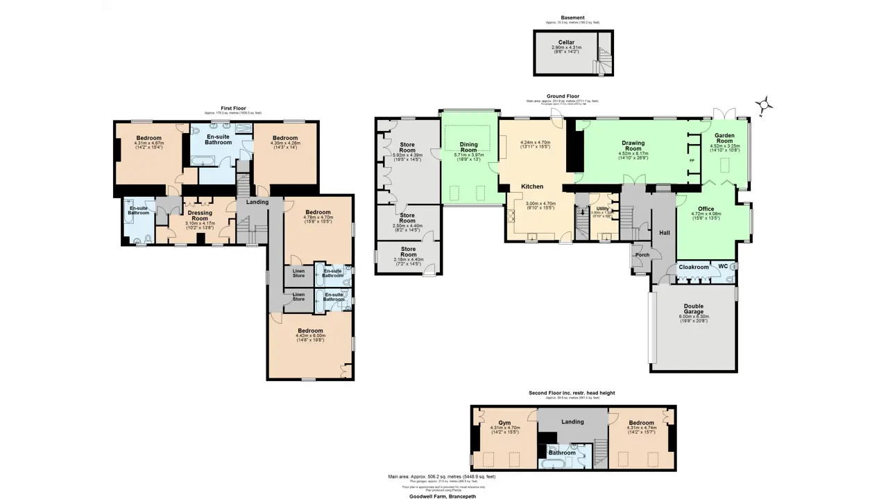
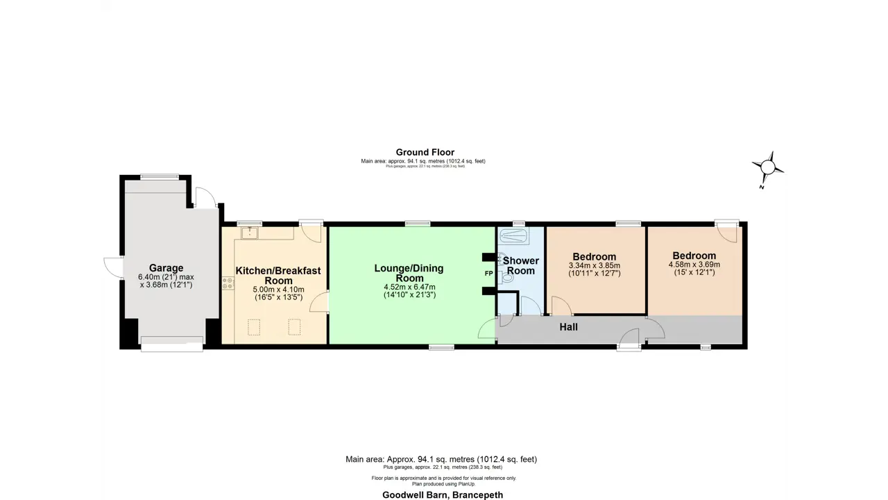
THE PROPERTYThe sale of Goodwell Farm presents the opportunity to purchase a substantial and beautiful period house with an adjoining cottage in a pretty and wooded position and close to the sought after and picturesque conservation village of Brancepeth. Brimming with charm and character the property has been the subject of a meticulous modernisation and enhancement project that has combined the original features with modern creature comforts to create a beautifully presented and stylish home.Entering through a welcoming porch into the farmhouse, the reception hall allows seamless access to the ground floor accommodation that includes a drawing room with an open fire in an oak and marble surround and an office with bi-fold doors opening into the garden room with a much loved view across the garden and parkland to the south. There is a sleek and modern living/breakfasting kitchen with oak floor, featuring a range of stylish fitted units complimented by a striking granite surface and a range of integrated appliances by Siemens. An Aga adds both functionality and style and there is a separate utility room, access doors to the front, rear and a door to the cellar.The dining room is an excellent venue for entertaining convenient to the kitchen. A vaulted ceiling with floor to ceiling windows to two elevations bathe the interior in natural light and allow views to the south.There is underfloor heating to the whole of the ground floor.Upstairs there are five bedrooms and five bathrooms. On the first floor the central landing provides access to the master bedroom suite with wardrobe space and a stylish en-suite bathroom with a four-piece suite in wet room style and a walk-in shower. Two further double bedrooms also feature luxurious ensuite facilities, while the fourth double bedroom and bathroom on the first floor is accessed through a bespoke dressing room with a range of wardrobes, drawers and shoe storage.On the 2nd floor there is a double bedroom and another luxurious bathroom. A low door from the landing leads to another room which is currently used as a gym.OUTSIDECompelling attributes of Goodwell Farm include the secluded yet accessible location, the striking garden and adjoining farmland giving far reaching views to the south. The property is at the end of a long private shared drive and is ultimately accessed via a private electronic gated drive which culminates in an expansive gravelled parking apron. A double garage featuring electric roller shutter doors, ensures both security and convenience and is integral to the farmhouse. The south of Goodwell unveils a beautifully landscaped English country garden, enclosed by traditional stone walls. Adorned with vibrant floral displays, borders, a charming patio area and a kitchen garden, this outdoor space provides a tranquil retreat. There is useful outdoor storage within the extensive outbuildings. There are 5 stables in a detached building and a large barn.GOODWELL BARNPerfect for multi - generational living or a home business venture, the adjoining barn is of traditional stone construction and has also been lovingly renovated to the same high-quality finish.The barn provides 2 double bedrooms, one with direct garden access, a shower room, generous living/dining room with log burner and a modern breakfasting kitchen with integrated appliances.Goodwell Barn has an attached single garage, ample parking and a beautiful sheltered walled cottage garden to the rear.LOCATIONGoodwell Farm is a country house located in open countryside. Brancepeth is the closest village. It is a conservation area and one of the most picturesque and sought after villages in County Durham. It was voted into 8th place by The Daily Telegraph in the list of “Poshest Villages in Britain.” Brancepeth occupies a pleasant rural setting with an attractive Medieval Castle, an 18-hole championship golf course, as well as a charming village church.The village has a quintessentially English and rural feel despite the extremely convenient distance to the nearby city of Durham. Brancepeth is situated approximately 5 miles to the West of Durham City Centre where there is a comprehensive range of shopping and recreational facilities and amenities available. It is especially well placed for commuting purposes up and down the country, by car, train and by air.DIRECTIONSDrive into Brancepeth Village on the A690. Turn north onto Wolsingham Road then turn left down the private road opposite Morley Lane. Follow this road across the Stockley Beck to the gated entrance to Goodwell Farm.Post Code: DH7 8DNMileagesDurham 5 miles Newcastle upon Tyne 24.5 miles Richmond 31.5 miles (All distances are approximate)what3wordsGoodwell Farmhouse - shape.files.stintGoodwell Barn – chart.moats.inflatingGENERALServicesMains electricity, water and gas are connected. Private sewage treatment plant. Gas fired Aga and central heating.Important NotesThe porch is an ongoing project and is further ahead since photographs were taken. It will have a solid roof and glazed elevations.Planning permission exists for solar panels to go on to the roof of the outbuildings. This consent has been crystallised by the commencement of the porch construction.AccessThe drive belongs to The Brancepeth Estate. They do not contribute to maintenance or upkeep. Maintenance is down to the owner of Goodwell Farm. Brancepeth Estate have a right of access to the end of the drive and out of the northwest corner of the property.Local AuthorityDurham County CouncilTenureFreehold for saleCouncil TaxGoodwell Farmhouse - Band G. Goodwell Barn – Band CEPCGoodwell Farmhouse Band C. Goodwell Barn - Band CRights of way, easements and wayleavesThe property is sold subject to and with the benefit of all existing wayleaves, easements and rights of way, public and private whether specifically mentioned or not. There are no public footpaths crossing the property.Fixtures and fittingsAll fixtures, fittings furniture, garden troughs and furniture are excluded.ViewingStrictly by appointment with the selling agents Galbraith, Hexham office Tel: 01434 693 693Email: hexham@galbraithgroup.comANTI MONEY LAUNDERING (AML) REGULATIONSPlease note that under the 2017 AML regulations we are legally required to carry out money laundering checks against purchasers. To enable us to complete these checks purchasers will need to provide along with their offer either: a) originals of primary (e.g. a passport) and secondary (e.g. current council tax or Utility bill) orb) copies of the same certified and dated by appropriate professional. Failure to provide this information may result in an offer not being considered.IMPORTANT NOTES1. These particulars are intended to give a fair and overall description of the property. If any points are relevant to your interest, please ask for further information prior to viewing. Prospective purchasers are advised to seek their own professional advice. 2. Areas, measurements and distances are given as a guide. Photographs depict only certain parts of the property. Nothing within the particulars shall be deemed to be a statement as to the structural condition, nor the working order of services and appliances. 3. The Seller will not be obliged to accept the highest, or indeed any offer and has the right to accept an offer at any time or withdraw the property from the market. The Seller will not be liable for any costs incurred by interested parties. 4. If there are matters of particular importance please raise this with us and we will try to check the information for you. 5. Particulars prepared August 2024. 6. Photographs taken August 2024.