Pap Inn

Kingskettle, Cupar, Fife, KY15 7TN

Offers Over £510,000

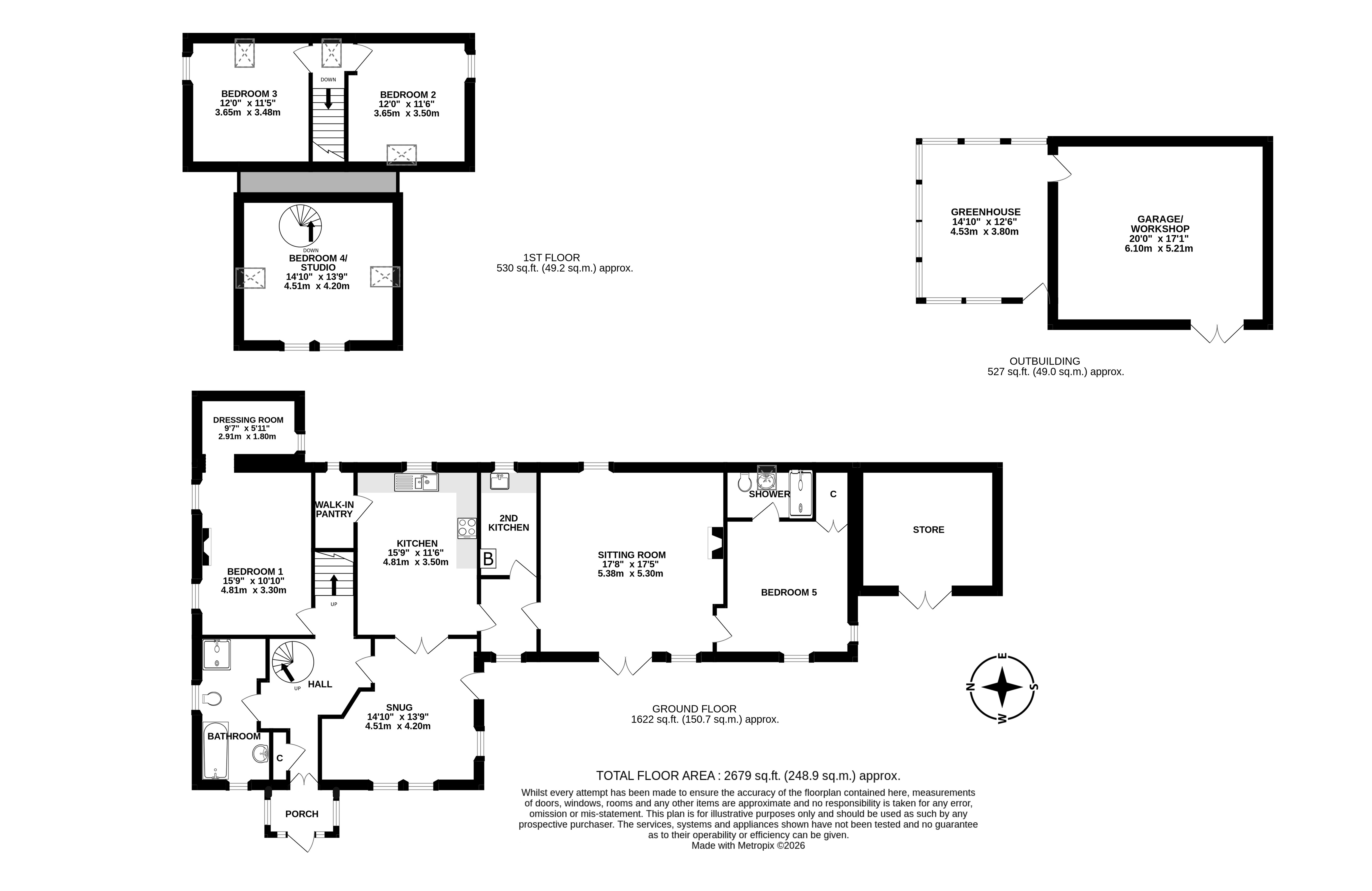
Bedroom Count icon 5

  • Charming property with far reaching views over rural countryside to the Lomond Hills.
  • 2 reception rooms. Kitchen. 5 bedrooms (1 en suite). Bathroom.
  • Lovely mature gardens with terrace.
  • Monoblock parking area and driveway.
  • Garage building with attached greenhouse.
  • Attached store with conversion potential.
  • Lovely semi-rural area ideal for commuting.

SITUATIONPap Inn is a charming stone built country property, positioned near the small hamlet of Kettlehill and Burnturk, with outstanding far reaching views to the Lomond Hills. A good range of local services and amenities are available in nearby Ladybank and Freuchie with the country market town of Cupar a short distance to the east, which offers an excellent range of local facilities. A few miles further to the east is St. Andrews, the ancient and historic cosmopolitan university town renowned worldwide as the “Home of Golf” with its excellent range of specialist shops and facilities.The thriving city of Dundee is about a thirty-minute drive to the north with Edinburgh also well within comfortable commuting distance. Surrounding Pap Inn is some particularly fine countryside with a lovely mix of farmland, woodland, hill and river. The result is home to an array of wildlife and also provides an excellent choice for the outdoor enthusiast with walking, cycling and riding all readily available.The wide open spaces of the Lomond Hills and the pretty fishing villages of Fife’s quaint East Neuk are just a short drive from the property. There are sandy beaches at St. Andrews, Tentsmuir, Kingsbarns, Crail and Elie along with a number of popular National Trust for Scotland properties including Hill of Tarvit, Kellie Castle and Falkland Palace. State schooling is available locally where a dedicated local bus service is in operation to transport school children. Independent schooling being provided at the High School of Dundee and St. Leonards in St. Andrews. There are railway stations in Ladybank, Leuchars, Cupar and Markinch with Edinburgh airport about a forty five minute drive to the south.DESCRIPTIONThe property is situated in an elevated position on Kettlehill, close to Kingskettle, with stunning views over rural countryside and out to the Lomond Hills. Dating back to 1783, the property extends to 248 sqm and is arranged over two floors. The property is stone built with pantile roof and has been extended over the years. The property benefits from many traditional features including beamed ceilings and feature fireplaces and a mixture of pitch pine and timber doors throughout.The house is entered through the front door into a small porch where solid wood storm doors lead to the front hall. The hall leads off to a family bathroom, bedroom 1 (with a dressing room) and a snug, which has a door to a lovely terrace. Double doors open from the snug to a spacious kitchen, which has a walk-in pantry, solid oak floor units and a Rangemaster cooker. A small hallway leads through to the utility room/second kitchen, which houses the oil-fired boiler. The sitting room has a lovely large stone-built fireplace with woodburning stove and doors to the garden as well as a bedroom, which has an en suite shower room and a fitted cupboard. There is an adjoining store which has planning potential to be converted, subject to obtaining the necessary planning consents.Two further bedrooms are accessed by a staircase from the front hall. Separately a lovely cast iron spiral staircase also leads up from the hall to a studio/bedroom, which has a large window overlooking the garden and countryside beyond.ACCOMMODATIONGround Floor: Entrance Porch, Hallway, Bathroom, Bedroom with Dressing Room, Sitting Room, Snug, Kitchen, Bedroom 5 with en suite shower room, Utility Room.First Floor: 2 Bedrooms. Separate spiral staircase leading to bedroom/studio.GARDENA driveway leads to a monoblock parking area where the double garage stands with a large timber greenhouse attached overlooking the sunny garden. The beautiful mature garden is private and surrounded by a mix of stone walls, fencing and hedges. It is to the rear of the property and mainly laid out with lawn, shrubbed borders and has a large paved terrace area with a pergola, perfect for outside dining. To the side of the property is an orchard.FLOOD RISKFlood maps of the area can be viewed at https://map.sepa.org.uk/floodmaps/FloodRisk/SearchDIRECTIONSFollow the A914 south-west from Cupar passing through Pitlessie and Balmalcolm. Before entering Kettlebridge turn left at the signs for Kettlehill and follow the road up the hill. Pap Inn forms part of a small rural settlement and is on the right-hand side after approximately half a mile.POST CODEKY15 7TNWHAT3WORDSTo find this property location to within 3 metres, download and use What3Words and enter the following 3 words:Happy.chops.directorsFIXTURES AND FITTINGSNo items are included unless specfically mentioned in these particulars. The cooker, fridge, freezer and washing machine are included in the sale. Most of the blinds and curtains are included in the sale, but the blinds and curtains in bedroom 1 are excluded. The mirror in the sitting room is excluded.