West End House

High Street, Freuchie, Cupar, KY15 7EZ

PCM £1,750

Bedroom Count icon 4

Reception Count icon 3

Bathroom Count icon 2

  • Landlord Registration Number: 352016/250/17111 & 352015/250/17111 (Pending Renewal)
  • Energy Performance Rating: EPC D(63)
  • Council Tax Band: E
  • Viewing can be requested by clicking - Request Details / Request Viewing.

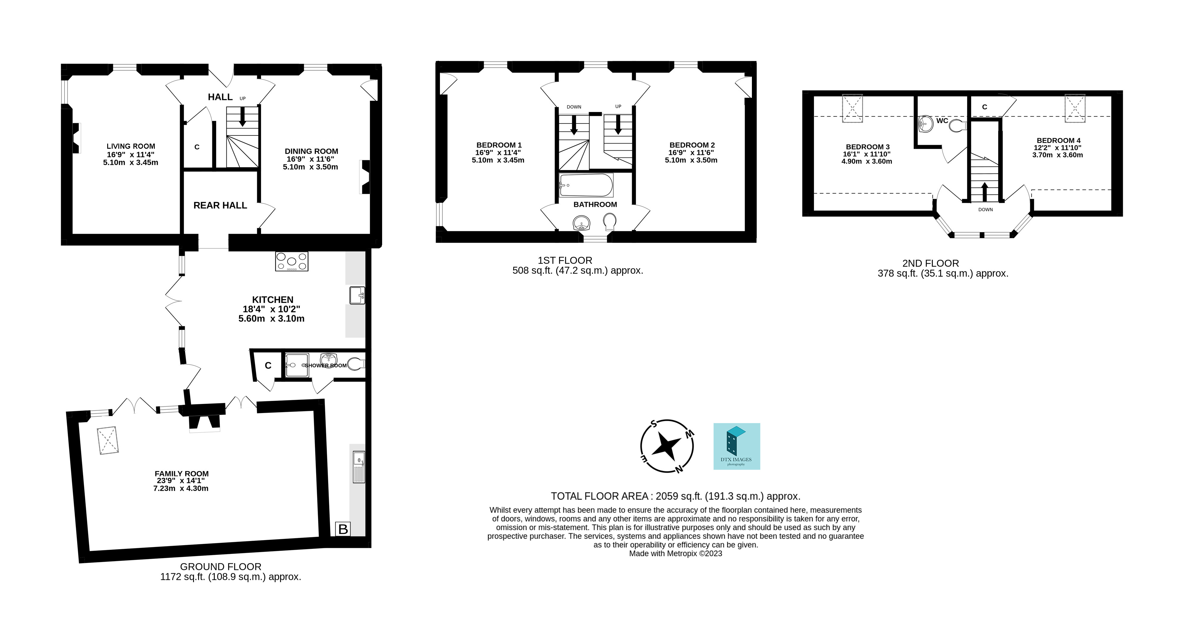
SITUATIONWest End House is a lovely Georgian home set in a central position in the sought after village of Freuchie, which has a thriving village community and provides a good range services and amenities including a primary school. DESCRIPTIONWest End House is a category B listed traditional stone built property which has been altered and extended in more recent years with the upgrading of attic accommodation and creation of a rear dormer window. The accommodation extends to about 192 sqm, is laid out over three levels and whilst having some renovation work carried out, it benefits from charm and character with some original Georgian architecture features left unchanged. The property is entered through a hardwood front door into the front hallway which gives access to the drawing room, dining room and leads through to the dining kitchen with patio doors to the garden. The creation of a living room with a wood burning stove and patio doors is in a former rear outbuilding. The linking of the main house to this new living room is from the kitchen, the utility room and shower room are also situated here. In the front hall is an under stairs cupboard and a staircase with cast iron balustrade leading to the first floor which has two double bedrooms linked by a Jack and Jill bathroom. On the third floor are two further bedrooms (one with en-suite wc) which completes the accommodation.ACCOMMODATIONGround Floor: Family room, drawing room, dining room, kitchen, shower room, utility roomFirst Floor: Two bedrooms, en-suite bathroomSecond Floor: Two bedrooms, en-suite wc.GARDENThe property has a gravel parking area to the front and driveway to the side. A gate leads to the rear garden which is mainly surround by a stone wall. The garden is mainly chipped with a small lawned area and decked area.Unfurnished, Available NowPets considered with additional months deposit.Rent £1,750 pcm Deposit £1,750POST CODEKY15 7EZ