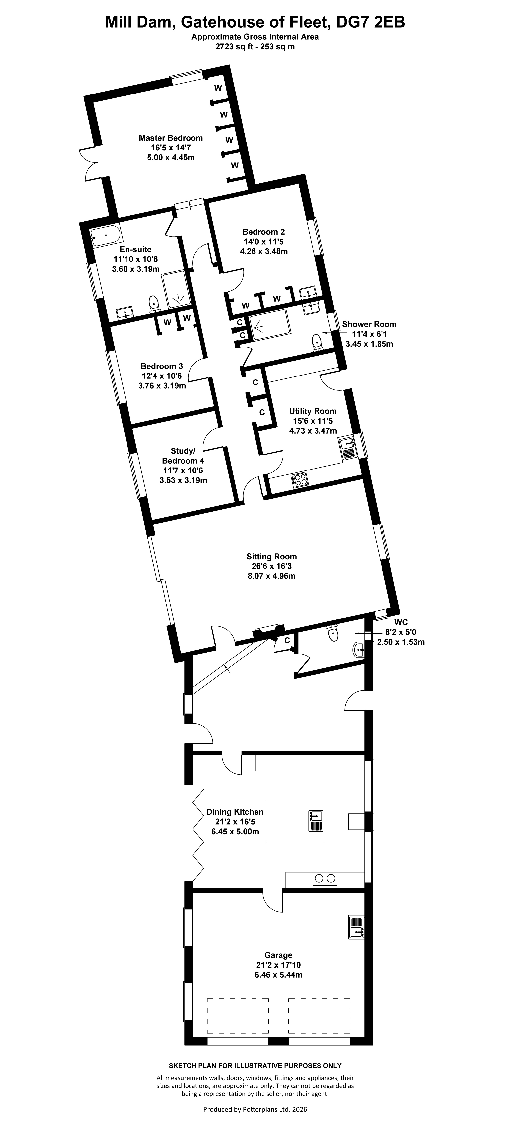
Mill Dam

Beechwood, Gatehouse of Fleet, Castle Douglas, Dumfries and Galloway, DG7 2EB

Offers Over £495,000

Bedroom Count icon 4

Reception Count icon 2

Bathroom Count icon 3

  • 2 reception rooms. 4 bedrooms
  • Integral double garage
  • Stunning mill pond
  • Large patio
  • Garden with apple orchard and fruit cage
  • Large greenhouse with power and water, and adjoining vegetable plots

Mill Dam sits in the quiet wooded residential area of Beechwood on the southeast edge of Gatehouse of Fleet. Located in the Fleet Valley National Scenic Area and designated a UNESCO Biosphere, Gatehouse has a good range of local facilities including a primary school, hotels, chemist, doctor’s surgery, coffee shops, post office/general store and a small supermarket. A wider range of services can be found in the nearby towns of Kirkcudbright and Castle Douglas.The harbour town of Kirkcudbright is known as Scotland’s Artists’ Town, having strong connections and history with the renowned Glasgow Boys. Today it thrives as a popular destination town with gallery, museums, individual shops and a wonderful community spirit. Primary and secondary schooling is available in the town. Castle Douglas is designated the region’s Food Town and is home to a wide variety of boutique shops and businesses. Again, primary and secondary schools are situated in the town. The region is famed for its outdoor sporting opportunities including mountain biking at the various Seven Stanes forest centres, fishing and shooting on the stunning lochs, hillsides, coast and rivers, golf at numerous courses including Gatehouse itself and further afield the championship course at Southerness, and equestrian pursuits. There also sandy, picturesque beaches within close proximity to Gatehouse at Sandgreen and Mossyard.Communications to the region are good with motorway connections north and south available at Moffat, Lockerbie and Gretna. Mainline train stations are in Lockerbie and Dumfries with connections to Glasgow, Edinburgh, Manchester and London. Glasgow and Edinburgh airports are each around 2 hours by car.DESCRIPTION Mill Dam is a striking single storey dwelling which is designed around the stunning mill pond which forms part of the unique garden. An airy entrance hall welcomes you from both front and back of the house. The spacious accommodation includes a large main dining kitchen which is the light-filled heart of the home. Fitted cabinetry and a large central island complete sink and dishwasher complement the Aga which gives a real sense of home. Bi-fold patio doors lead out to the patio and to the rear two picture windows bring the outside in. The large utility room is fitted out in such a way that it is effectively another kitchen, giving huge flexibility and amenity to the accommodation. Four good sized bedrooms, including a master suite with French doors leading to the garden, give plenty of room for a growing family or visiting friends, grandchildren etc, as well as scope for working from home. The current owner uses bedroom four as a study, ideal for someone needing to work from home, but it could equally make a good-sized bedroom. The large sitting room has patio doors leading out to the patio, and a welcoming fireplace for those cosy winter nights. The double garage is integral, accessed from the main kitchen, and has double electric-powered Hormann doors with remote control. There is plenty of workspace, including a sink.With the focus of the house towards the pond, the patio and French doors all give lovely views of it, and in the warmer months can all be open, giving a lovely connection between indoors and out, ideal for summer entertaining and family gatherings. All in all, Mill Dam is a fantastic opportunity to acquire a unique home in an idyllic setting on the edge of a popular Galloway town. ACCOMMODATION Entrance hall. Cloakroom WC. Dining Kitchen. Sitting Room. Utility Room/Kitchen 2. Shower Room. Master Bedroom with En Suite Bathroom. 3 further Bedrooms. Integral Double Garage.GARDEN From the lane, stone gate piers open to the driveway, which follows up round to a parking area in front of the garage doors. To the front of the house lies a large patio, ideal for summer entertaining, and a wide lawn in front with the pond stretching across the length. A wooded area curves around the far side of the pond. To the far end lies an apple orchard, and fruit cage, and to the rear is an area of raised beds suitable for shrubs and vegetables.