West Ashyard

Hurlford, Kilmarnock, KA1 5JE

Offers Over £395,000

1.45 acres

  • An excellent development site with planning for four houses in a rural location with panoramic views.
  • Conditional planning permission for four houses.
  • For sale as a whole or in 2 Lots.
  • Lot 1: 0.93 acre site with conditional planning for 3 houses.
  • Lot 2: 0.27 acre site wth conditional planning for 1 house.
  • Idyllic rural setting with views over surrounding countryside.
  • Easily accessible to road networks.
  • Water and electricity on site.
  • Additional land available by separate negotiation.

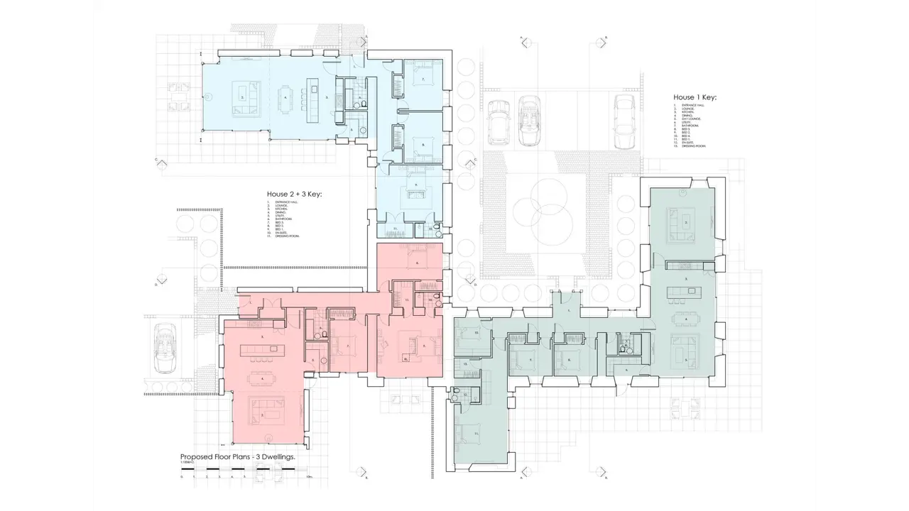
West Ashyard is situated in a peaceful location yet within an easy commute to Glasgow city centre via the M77. It is also a short distance from the A71 trunk road between Galston and Kilmarnock. There are excellent transport links in the area with a regular train service to Glasgow from Kilmarnock whilst Prestwick Airport with regular scheduled international flights is about 12 miles distant.Hurlford has a primary school and nearby Galston has both primary and secondary schooling and a popular leisure centre. Private schooling is available at Wellington in Ayr and Belmont, Newton Mearns (14 miles). Kilmarnock has a wider range of amenities including restaurants, theatre, hospital, cinema and sports complex. The surrounding rolling countryside of the Irvine Valley offers a network of country lanes and walks including the Burn Anne Walk, it is also ideal for cycling and hacking. Ayrshire is renowned for its many golf courses including the world famous Turnberry, Prestwick and Royal Troon. The Loudon Gowf Club is located just outside Galston. There are excellent yachting facilities at the marinas at Ardrossan, Largs, Inverkip and Troon. West Ashyard presents an exciting opportunity to obtain a large steading development site amongst beautiful rolling countryside. Previously a working farm, the site comprises the former farmhouse and attached farm buildings. Conditional planning permission was granted on 25th July 2024 on Planning Reference No. 24/0341/PP for the change of use, conversion, subdivision and extension of agricultural buildings to form three dwelling houses. A separate Planning Reference No. 24/0521/PN granted on 10th December 2024 refers to the change of use and alterations of an agricultural building to form a fourth dwelling house. The proposed dwellings are outlined below: LOT 1:0.93 acre site with conditional planning for 3 houses:-House 1:Single storey.183.93sqm.Open plan kitchen/dining room, living room, 4 bedrooms (1 en suite with dressing room) and bathroom.House 2:Single storey.163.33sqm.Open plan kitchen/dining room, utility room, living room, 3 bedrooms (1 en suite with dressing room) and bathroom.House 3:Single storey.159.55sqm.Open plan kitchen/dining room, utility room, living room, 3 bedrooms (1 en suite with dressing room) and bathroom.LOT 2:0.27 acre site with conditional planning for 1 house:-House 4:Single storey119.83sqm.Entrance hall, living room, dining room, kitchen, utility room, bathroom, 3 bedrooms (one en suite).GARDEN There will be an area of garden for each dwelling as shown on our site plan. There will be 11 car parking spaces provided with an allocation for each dwellingFLOOD RISKFlood maps of the area can be viewed at https://map.sepa.org.uk/floodmaps/FloodRisk/Search. The current owner has not experienced any flooding in their ownership.ACCESS/THIRD PARTY RIGHTS OF ACCESS/ SERVITUDES ETCThere will be a right of access over the access drive with shared maintenance.DIRECTIONS From Glasgow take the M77 towards Kilmarnock. At Junction 6 (signposted Galston A77) slip left. Follow signs for Galston then turn left on to the A719. Drive through Waterside and Moscow then take the A71 at the roundabout heading for Kilmarnock. Turn left after 2.95km and West Ashyard is on the left after about 1.48km.From Ayr take the A77 north towards Kilmarnock. At the Bellfield roundabout take the third exit signed Hurlford/Galston. Drive through Hurlford and turn right after about 0.7 miles on to an un-named road and West Ashyard is on the left hand side after about 0.9 miles.POST CODEKA1 5JE WHAT3WORDSTo find this property location to within 3 metres, download and use What3Words and enter the following 3 words: ///zones.sharpens.citySOLICITORSDales, 18 Wallace Street, Galston, East Ayrshire, KA4 8HP LOCAL AUTHORITYEast Ayrshire Council, Council Headquarters, London Road, Kilmarnock, KA3 7BU VIEWINGSStrictly by appointment with the Selling Agents. ANTI MONEY LAUNDERING (AML) REGULATIONS Please note that under the 2017 AML regulations we are legally required to carry out money laundering checks against purchasers. Upon verbal acceptance of an offer, we require to identify the purchaser for Anti-Money Laundering purposes. Our service provider ‘First AML’ will contact the purchaser to gather the required identification documents. An information sheet is available from the selling agent on request. We are not able to enter a business relationship with a purchaser until they have been identified. Failure to provide required identification may result in an offer not being considered.HEALTH & SAFETYAppropriate caution should be exercised at all times during inspection particularly in reference to any livestock present and working machinery and equipment on the property.