Tower House

Rothienorman, Inverurie, Aberdeenshire, AB51 8UP

Offers Over £599,595

Bedroom Count icon 4

Reception Count icon 3

Bathroom Count icon 3

  • 3 reception rooms. 4 bedrooms
  • Stunning country landscape and panoramic views
  • High-quality internal finishes and unique features
  • Beautiful Views and garden grounds
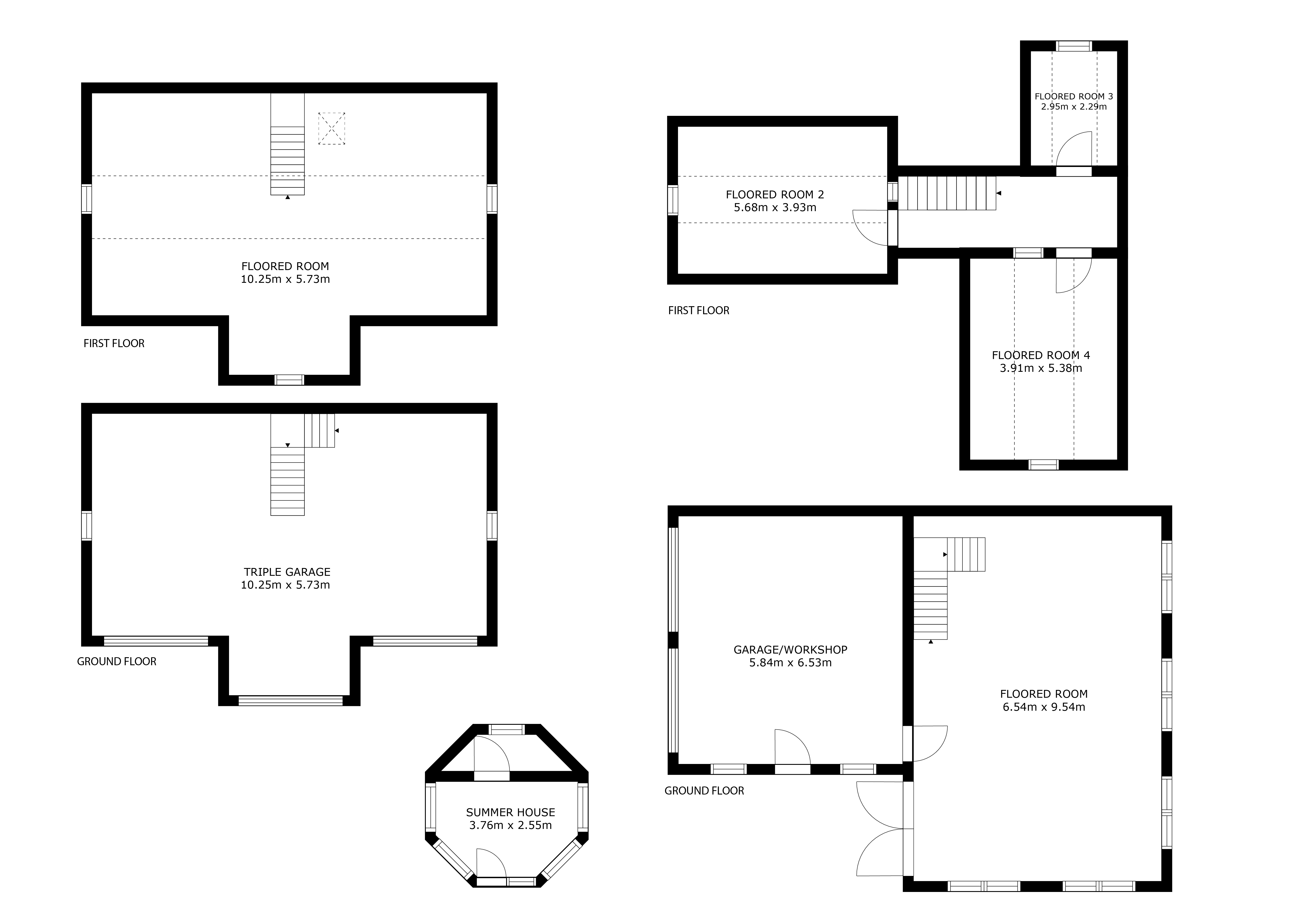
  • Triple garage with floored attic space
  • Detached 2 storey garage with workshop

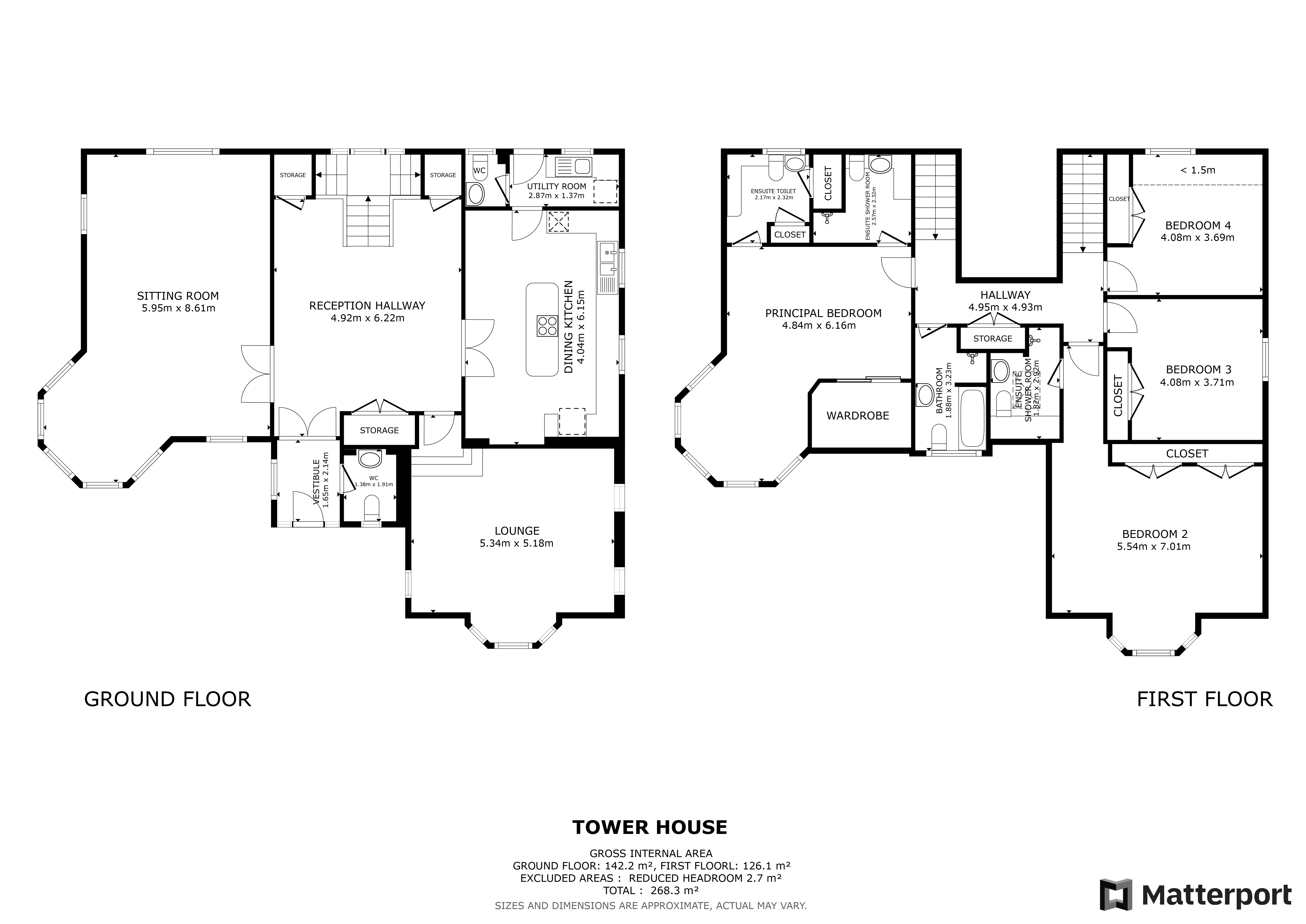
Tower House is an exceptional luxury detached family home, set within a highly private rural location just minutes from Rothienorman and approximately nine miles from Inverurie. Enjoying breathtaking panoramic views across open countryside towards the iconic Hill of Bennachie,. Complementing the home are a substantial triple garage and a further detached double garage with workshop, all finished to an equally high standard.Completed in 2012 by the current owners, Tower House has been thoughtfully designed to provide a modern, energy-efficient, and low-maintenance home of outstanding quality. Great care has been taken in both design and finish, with bespoke internal joinery and a layout that maximises the stunning surrounding views from most rooms. The impressive reception hallway, centred around a magnificent oak staircase, immediately showcases the craftsmanship throughout. Additional standout features include a vaulted ceiling in the principal bedroom, an elegant stained-glass window on the staircase, and beautifully crafted oak wall panelling.The accommodation is both generous and highly versatile. A welcoming vestibule with WC leads through glazed double doors into the striking reception hall an expansive and sociable space that forms the heart of the home. From here, double doors open into the main sitting room, a beautifully proportioned and light-filled space featuring large windows and a distinctive hexagonal bay that reflects the home’s characterful ‘tower’ design. A second lounge offers a warm and inviting retreat, while the dining kitchen is comprehensively fitted with quality wall and base units, a central island, and integrated appliances. A spacious utility room with external access and an additional WC adds further practicality.Upstairs, a split-level staircase leads to a bright upper hallway providing access to all bedrooms. The principal suite is particularly impressive, with a bay window seating area perfectly positioned to take in the far-reaching views, along with two en-suite shower rooms and a generous walk-in wardrobe. A second large bedroom also benefits from an en-suite, while two further well-proportioned double bedrooms feature built-in storage. A stylish family bathroom, complete with separate shower enclosure, serves the remaining rooms. All bathrooms and en-suites are finished to a high specification, and excellent storage is provided throughout.Option 1 - Tower House & LandThis includes Tower House, outbuildings and 24 acres of land. Option 2 - Tower House Only This option is for Tower House, garden grounds of around 2.8 acres and outbuildings only. ACCOMMODATIONGround floor: vestibule with w.c off, reception hall/dining room, kitchen/dining room, utility room with w.c off, living room, sitting room.First floor: principal bedroom incorporating a living area within the bay with ensuite dressing room/w.c and ensuite shower room, bathroom, bedroom 2 with ensuite shower room, 2 bedroomsSERVICES, COUNCIL TAX AND ENERGY PERFORMANCE CERTIFICATE(S)Water - Private WaterElectricity - MainsDrainage - Septic tankTenure - FreeholdHeating - Oil Central HeatingCouncil Tax - Band GEPC - DGARDEN GROUNDSTower House enjoys a commanding and picturesque position within its surrounding rural landscape, approached via a private road shared with only a small number of neighbouring properties, ensuring a high degree of peace, privacy, and exclusivity. The immediate gardens extend surround the house and are mostly laid to lawn and providing an attractive setting that perfectly complements the house. A large, tarred driveway offers ample parking for multiple vehicles and incorporates a convenient turning area to the front of the property.A particularly charming feature is the octagonal stone-built summer house, which provides an ideal vantage point from which to relax and take in the beautifully kept gardens and far-reaching countryside views. OUTBUILDINGSAdjacent to the main residence are two substantial detached garage buildings, both offering exceptional versatility and significant potential for a range of uses. The original double garage, constructed in 2002 alongside the house, is arranged over two levels and provides both vehicular and pedestrian access at ground floor level, together with a generous workshop area ideal for storage, hobbies, or practical use. Above, the first-floor attic space comprises three well-proportioned rooms, each with double-glazed windows, offering excellent potential for use as home offices, studio space, ancillary accommodation, or further storage.The second building is a detached triple garage, added circa 2015, which further enhances the functionality and flexibility of the property. This too benefits from a fixed staircase leading to a spacious attic level, providing additional adaptable space. Together, these buildings offer outstanding scope for a variety of purposes, including small business use, creative studios, or conversion potential for ancillary accommodation, subject to the necessary consents.Both buildings are fully equipped with power and lighting, ensuring they are immediately usable and highly practical. Their scale, layout, and separate access potential make them a rare and valuable asset, particularly for those seeking workspace alongside home life in a rural setting.SITUATIONThe property enjoys a peaceful rural setting while remaining conveniently close to a range of local amenities. It is situated approximately 4 miles from the village of Rothienorman, which offers a primary school, convenience stores, and a selection of independent retailers. A further 4 miles away lies Daviot, home to a primary school, village hall, and a traditional village pub. The nearby hamlet of Drum of Wartle provides a local garage with fuel and a shop for everyday essentials. The closest town is Oldmeldrum, which offers a Co-op supermarket, two pubs, cafés, and a variety of takeaway outlets. The highly regarded Meldrum House Country Hotel and Golf Club is also within easy reach, while the town is home to the historic Oldmeldrum Golf Club, where golf has been played for over 125 years. Secondary education is available at Meldrum Academy. Inverurie, a thriving and expanding town set in the valley of the River Don, offers excellent road and rail connections north and south, including to Aberdeen, Dyce, Huntly, and Inverness. The town provides an excellent health centre integrated with the local hospital, several large supermarkets, a Marks & Spencer food hall, a swimming pool, community centre, and a wide range of leisure facilities including golf, tennis, and bowling. Outdoor pursuits are well catered for in the surrounding area, with hillwalking particularly popular. Numerous scenic routes can be enjoyed nearby, including those at the renowned Hill of Bennachie.Rothienorman is well placed for commuting. The village lies within convenient driving distance of Inverurie, which provides regular rail services and onward connections, and is approximately 20 miles from the city of Aberdeen, making it an accessible base for those working in the city and surrounding business hubs. Aberdeen International Airport is also readily accessible, offering a range of domestic and international flights, ideal for business and leisure travel. The surrounding road network allows for straightforward travel north and south, ensuring Rothienorman combines the benefits of rural living with excellent connectivity