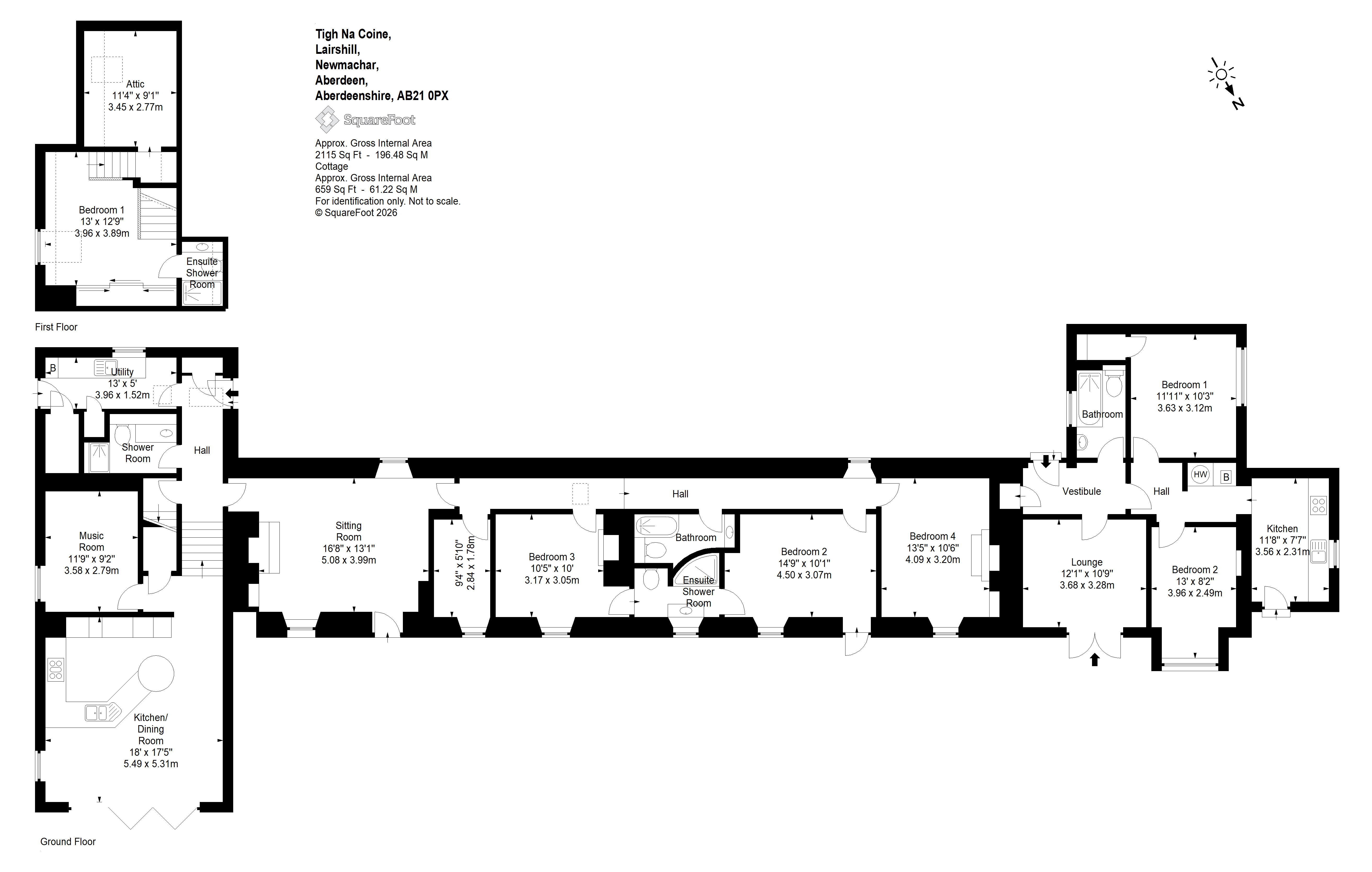
Tigh na Coine, Lairshill

Newmachar, Aberdeenshire, AB21 0PX

Offers Over £650,000

7 acres

Bedroom Count icon 4

Reception Count icon 3

Bathroom Count icon 4

  • Main House - 3 reception rooms. 4 bedrooms
  • Impressive family home
  • Semi-detached 2-bedroom cottage
  • Garden grounds and paddocks
  • Around 7 acres in total
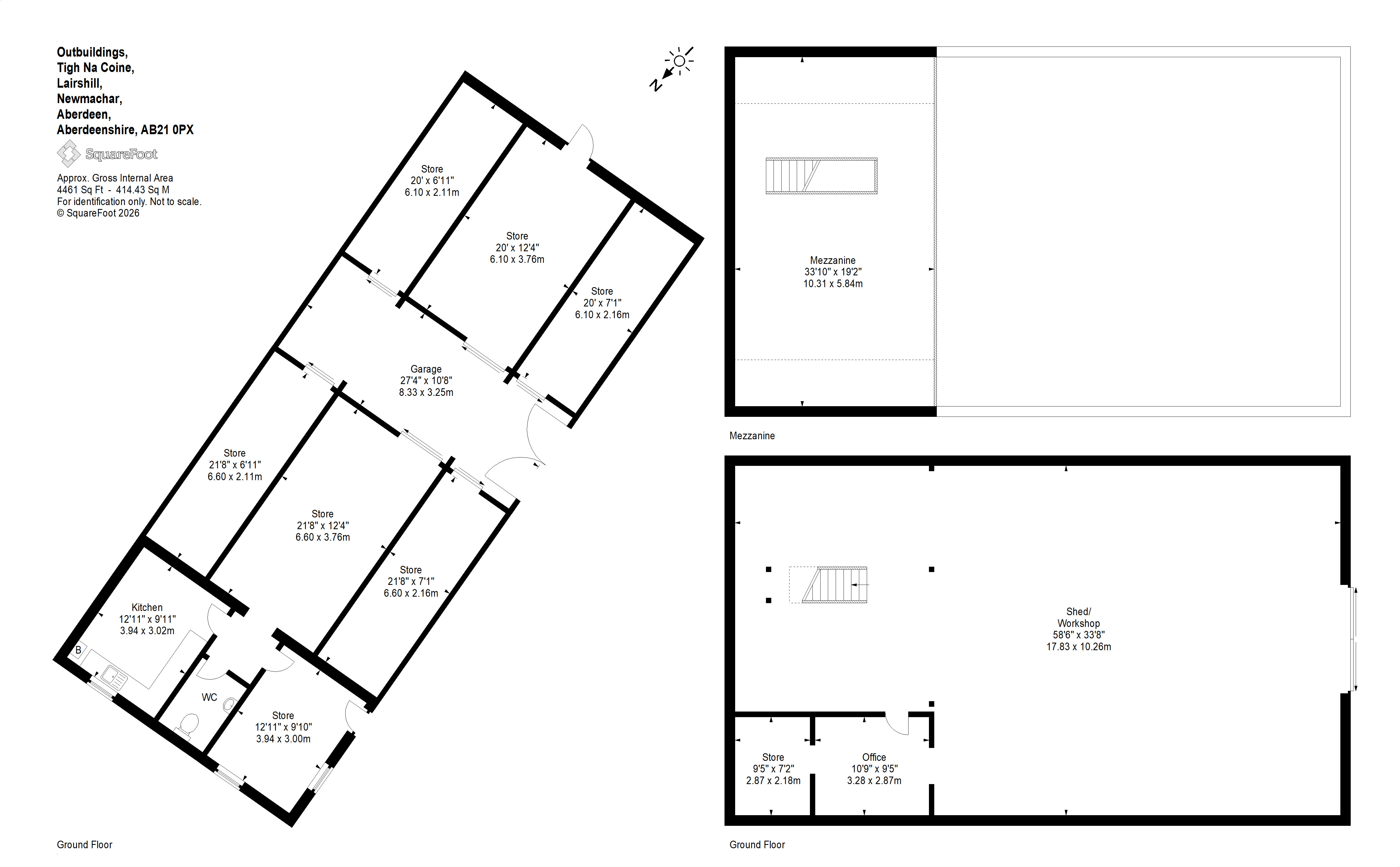
  • Two detached outbuildings

Tigh na Coine has an idyllic countryside location, lying just on the outskirts of the village of Newmachar. Nearby Dyce offers a wealth of transport links, including easy access to Aberdeen International Airport. The property benefits from stunning open views across the beautiful Aberdeenshire countryside, and there is a true feeling of space and privacy. Originally built around 1900 and converted circa 2000, the main solid stone-built dwelling has been carefully maintained, refurbished, and extended by the current owner over the past 20 years to a high standard. Kennel Cottage, formed from the dwelling in 1995, has recently undergone full refurbishment and provides a modern, ready-to-move-into two-bedroom self-contained home. The name Tigh na Coine, derived from the Gaelic for “House of Dogs,” adds a distinctive sense of character and reflects the property’s history. Previous owners operated a kennel business from one of the detached outbuildings, and the overall site continues to offer excellent potential for a variety of uses, including lifestyle, equestrian, or smaller commercial opportunities.Upon entering the main home, an immediate sense of peacefulness descends. Every room has been immaculately designed to offer comfort, while cleverly balancing the need for practicality in a home that provides such an excellent outdoor lifestyle. The main entrance hall offers a spacious and welcoming entry with access leading to both wings of the house. A handily located utility room provides a sink and storage space with a range of storage options. A beautifully presented shower room combines sleek design with high-quality finishes to create a stylish and practical space.The impressive family dining kitchen is the heart of this family home, fitted with a luxurious kitchen incorporating a range of quality appliances, beautiful worktops, and a striking kitchen island with informal breakfast seating to one end. There is ample space for freestanding furniture, and the room benefits from wall to wall bi-fold doors allowing an abundance of natural light to flood in and provide wonderful views to the garden and countryside beyond. The vaulted ceiling height adds to the wow factor and creates a real sense of light and space. Behind the kitchen there is a practical room that the current owners use to practice musical instruments. This room offers excellent potential for a variety of uses to suit the growing family.From the main hall, a short staircase leads to a private upper level, where a principal bedroom with its own en-suite shower room is located. Benefiting from a stunning window view, there is ample storage and access to a useful attic room.The main sitting room enjoys dual-aspect windows capturing the open views, along with a partially glazed door leading to the garden. An exquisitely presented room, the sitting room has generous proportions, with the working fireplace and mantel providing a further focal point. From the lounge, the corridor leads to a spacious study and three further double bedrooms. Bedrooms two and three benefit from a stylish and well-appointed Jack and Jill shower room which has been finished to a high standard, offering both practicality and modern comfort. The room features a fully enclosed shower with attractive mosaic tiling, complemented by a contemporary vanity unit. Completing the accommodation is a well-appointed family bathroom.The overall standard of décor is fresh and modern, and the use of quality fixtures, fittings, flooring, and carpeting creates a stunning and unique atmosphere throughout.Kennel cottage has its own self-contained front door access and has been very recently refurbished providing excellent two-bedroom accommodation. The accommodation comprises a lounge with French doors to the garden, two double bedrooms, a modern and new kitchen and bathroom with a utility area.Main AccommodationGround Floor: Entrance Hall, Living Room, 2 Bedrooms with Interconnecting Ensuite Shower Room, Bedroom, Bathroom, Study, Dining Kitchen, Sitting Room, Utility Room, Shower Room.First Floor: Bedroom, Sitting Area/Snug, Ensuite Shower Room.Kennel CottageGround floor: Entrance Hall, Living Room, Two Bedrooms, Kitchen, Bathroom, Utility AreaGarden GroundsMature garden grounds surround both properties and enjoy idyllic open views across the surrounding countryside and a sheltered patio to the rear of the steading offers a wonderful spot in which to sit and enjoy the views. A haven for wildlife the garden grounds provide a mixture of mature trees and natural planting with areas of lawn. Kennel cottage has its own fully enclosed garden with patio. A gated and fully enclosed stone chip driveway provides ample parking for several cars in front of the main dwelling. High timber fencing separates the steading from Kennel Cottage, and the cottage has its own driveway and parking.LandThere are two large fields adjacent to the property and boundaries are defined with fencing.OutbuildingsThere is a detached outbuilding of steel portal frame construction. Internally, with a solid concrete floor and the walls are unlined. The outbuilding benefits from power and light along with a water supply, an upper level provides further storage/ office space. The second detached outbuilding is of solid concrete block construction, roughcast externally with remaining areas being of timber frame construction, timber weatherboard clad. Internally, the outbuilding has been subdivided to provide various storage areas and has a working kitchen area and was previously used as part of the kennel business. The outbuilding benefits from power and light. There is a water supply.ServicesTigh na Coine Steading: Private Water | Mains Electricity | Septic Tank | Oil HeatingKennel Cottage: Private Water | Mains Electricity | Septic Tank | Oil HeatingTigh na Coine is situated on the outskirts of the village of Newmachar, enjoying an idyllic and peaceful stand-alone location in the Aberdeenshire countryside. It is conveniently close to Aberdeen City and offers easy access to the AWPR bypass for commuters heading North or South of the city, as well as Aberdeen Airport and Dyce railway station. Newmachar and Dyce feature good local amenities, including various shops, post offices and pharmacies. Primary schooling is provided by Newmachar Primary School, with secondary schooling available at Dyce Academy. Private schools are also available in Aberdeen. Locally, there is a diverse range of recreational facilities, scenic woodland walks, and excellent golf courses. The Formartine & Buchan Way is nearby. This former railway line connects Dyce to the village of Maud, where it branches into two routes: eastward to Peterhead and northward to Fraserburgh. This pathway offers a picturesque route for walkers, cyclists, and horse riders. The popular town of Inverurie is also just eight miles from the property and has its own wealth of amenities, secondary schooling and supermarkets.A lively equestrian community exists near Tigh na Coine, just a 15-minute drive from the Cabin Equestrian Centre & Riding Club, Ladyleys Equestrian Centre, Loanhead Equestrian, and Ardmedden Equestrian, which provide training and competitions in all disciplines. Additionally, Tillyoch Equestrian Centre is a 20-minute drive away, and Scotland’s top-tier Bogenraith Equestrian, a new state-of-the-art facility, is located within an easy drive from the property. Balmedie Beach, with dedicated horse box parking, is 20 minutes away.