The Red House, Heughhead

Strathdon, Aberdeenshire, AB36 8XJ

Offers Over £480,000

Bedroom Count icon 4

Reception Count icon 2

Bathroom Count icon 3

  • 4 reception rooms. 4 bedrooms
  • Idyllic Cairngorms National Park
  • Stunning views and location
  • Single storey studio–70sqm
  • Immaculate condition throughout
  • Timber workshop with woodstore

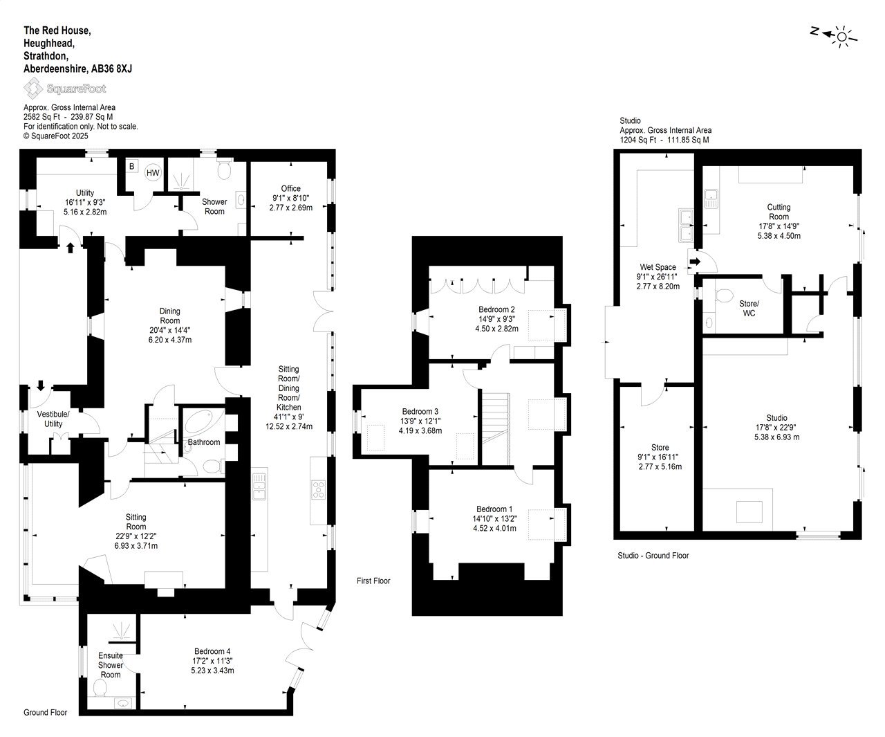
DescriptionSituated within the small rural hamlet of Heughhead, in the heart of Strathdon, The Red House enjoys a setting steeped in Aberdeenshire’s rich agricultural and craft heritage. Strathdon, located in the upper valley of the River Don, has long been characterised by rural living, and Heughhead itself holds historic significance as a modest yet active 19th-century settlement. Records indicate the presence of a former inn, farmstead, and even a local pottery works, Strathdon Pottery, reflecting a once-thriving rural hub that served both residents and travellers passing through the valley. Elements of this heritage remain visible today in the traditional stone buildings and converted steadings that define the area.The Red House forms part of this evolving landscape, originally dating back to around 1850, with sympathetic extensions added over the past 40 years. Today, it sits within a peaceful and picturesque setting, where the legacy of its past blends seamlessly with contemporary rural life. The current owner is an active artist, and the detached studio within the garden grounds has been constructed to a high standard. This impressive addition has frequently featured as part of the Northeast Open Studios, where artists across Aberdeenshire invite visitors into their working spaces. The local art scene in Strathdon is vibrant and community-driven, the studio situated in the garden at The Red House extends to approximately 70sqm offers excellent potential for a variety of creative or professional uses.Spanning two levels and offering generous accommodation, The Red House provides an idyllic internal atmosphere, with each room possessing its own distinct character while remaining well suited to modern family living. Entry is via a welcoming front vestibule which leads into the first of the living spaces, an inviting living room where an expansive exposed brick wall houses a wood-burning stove provide attractive focal points. Views over the garden and surrounding countryside are equally striking.The sitting room, currently used as a formal dining room, is particularly charming, featuring exposed wooden beams and a striking stone wall with an inset log burner at its heart. Adjacent to the dining kitchen, a double bedroom has a self contained aspect with access to the garden and its own en-suite shower room., ideal for guests or multi-generational living. To the rear of the ground floor lies a beautifully presented galley-style kitchen, thoughtfully designed to combine style with practicality. A range of wall and base units contrasts elegantly with Granite dark worktops, creating a clean contemporary aesthetic. The space is enhanced by abundant natural light, contributing to its bright and welcoming feel. French doors open out to the garden and Velux roof windows add to the high ingress of light. High-quality integrated appliances, including a large range cooker with overhead extractor, make this kitchen ideal for both everyday living and entertaining.The kitchen flows effortlessly into a charming dining and seating area at the far end, complete with ceiling beams that add a touch of rustic elegance. Light wood flooring runs throughout, enhancing the sense of continuity and space. With ample room for a variety of freestanding furniture, this dining kitchen enjoys a delightful outlook over the rear garden and serves as a central hub for family life.Adjacent to the kitchen is a study room and also located on the ground floor there is a utility room, shower room with WC, and a family bathroom, offering excellent convenience and flexibility. On the upper level, there are three well-appointed bedrooms, each enjoying beautiful views across the garden and the surrounding countryside.AccommodationGround Floor: Entrance vestibule, living room, sitting room, dining kitchen with study off, bedroom with en suite shower room, utility room, shower room with WC and bathroom with WC.First floor: 3 bedroomsTenure - FreeholdLocal Authority - Aberdeenshire CouncilCouncil Tax - Band FEPC - Band DServices - Mains water and electricity are connectedSeptic tankOil HeatingGarden GroundsTo the front of the property, a welcoming driveway provides convenient off-street parking, setting a practical yet pleasing first impression. The surrounding garden grounds surround the property and offer a charming blend of well-maintained lawns and thoughtfully planted borders. The current owners have a productive growing area with raised beds, a greenhouse, and a poly tunnel, creating an efficient and versatile space for cultivating a wide range of plants and produce throughout the year. A tranquil pond forms a delightful focal point, enhancing the sense of calm and connection with nature. Boundaries, where defined, are a combination of timber and wire fencing, The front hedging adds to the character of the exterior contrasting well with the distinctive red exterior.OutbuildingsWithin the rear of the garden, the stylish and versatile detached studio building is set within its own landscaping. Currently used as a creative workshop, this dwelling has been built to an exacting and high standard and has internal rooms which could lend themselves to a wealth of opportunities. The exterior features attractive timber cladding with a sleek low pitched metal roof. Large windows and glazed doors flood the interior with natural light, ideal for a studio environment, whilst the room configurations, high spec insulation, plumbing and heating would lend themselves well to a wealth of usage. The overall size of the studio is 70 sqm. There is also a second timber constructed workshop with metal clad roof and log store attached.It is worth noting that the adjacent Smithy Cottage will also be available for sale as an independent listing. The current owners of The Red House operate a successful Airbnb business from the property, and it would lend itself equally well as a charming principal residence or an attractive second home.SituationThe Red House is situated in the picturesque hamlet of Heughhead, within the attractive district of Strathdon, on the eastern edge of Cairngorms National Park. Surrounded by open countryside in the upper valley of the River Don, the property enjoys a peaceful rural setting in an area renowned for its natural beauty, with rolling farmland, heather moorland and hills forming a striking landscape. In addition to its agricultural heritage, Strathdon has a long-standing tradition of craft and creativity, with a number of artists, makers and small studios based throughout the area, contributing to a strong and active local community.Local amenities are available within Strathdon, with a wider range of services in the nearby villages of Bellabeg, Alford, Aboyne, and Ballater, all within a comfortable drive. The area is celebrated for its strong community spirit and traditional Highland heritage, exemplified by events at Lonach Hall, including the annual Lonach Highland Gathering. Strathdon offers an exceptional setting for those who embrace life outdoors, with rolling hills, open moorland, forests, rivers, and lochs providing a breathtaking Highland backdrop. The Strathdon area offers a range of scenic walking trails suited to different levels of experience. For those seeking a challenge, the Corgarff Castle to Drum Loin route is the longest at around 30.6 km, featuring a substantial 746 m elevation gain. Another demanding option is Morven via Coinlach Burn, widely regarded as the most popular and difficult trail, with strong reviews from walkers. For a more relaxed outdoor experience, the Culstruphan and Millhuie Hill Circular is a well-liked camping-friendly route, while the Bunzeach Trail provides a rewarding circular walk with sweeping views over Strathdon.The River Don and nearby lochs provide excellent trout and salmon fishing, and traditional Highland sporting estates offer clay shooting, game bird hunting, and deer stalking. Equestrian enthusiasts will enjoy extensive bridle paths and estate tracks, while winter sports are available at The Lecht Ski Centre, alongside canoeing, kayaking, and gentle water pursuits on local rivers.The surrounding countryside is rich in wildlife, including red and roe deer, red squirrels, wild grouse, birds of prey, and otters, making Strathdon a haven for nature lovers and wildlife photographers alike. With its combination of outdoor adventure, natural beauty, and cultural heritage, the area provides a truly inspiring Highland lifestyle.The city of Aberdeen lies approximately 38 miles to the east and provides a full range of professional, educational and leisure facilities together with mainline rail services and Aberdeen International Airport, offering regular domestic and international flights. Further transport links are available at Inverness Airport, approximately 61 miles to the north-west. Schooling is available locally at Strathdon Primary School, with secondary education at Alford Academy.