Brae Of Blackton
King Edward, Banff, AB45 3NQOffers Over £255,000
1 acres
3
1
1
- 1 reception room. 3 bedrooms
- Spacious dining kitchen
- Sitting room with wood burner
- Beautiful country views
- Garden & outbuildings
- Just over 1 acre in total
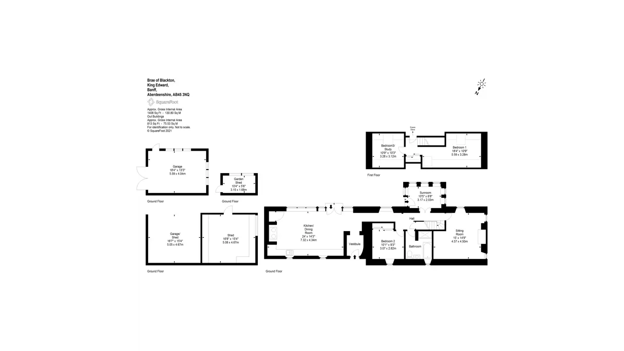
Brae of Blackton is a charming, detached cottage in the heart of rural Aberdeenshire. The cottage has a southerly aspect and sits just over 1 acre of ground with beautiful surrounding views of the countryside. The accommodation comprises an entrance vestibule, sitting room with wood burning stove with the original stone surround and exposed wall. The dining kitchen has a large picture window with a south facing aspect over the garden and french doors open out to the patio. There is plenty working, storage & dining space with an ‘Esse’ stove. The sunroom again overlooks the garden with door leading outside, and is currently used as an office, and the second bedroom is a generous double room with built in wardrobes. Completing the accommodation to the ground floor is the bathroom with bath and large, separate shower. Continuing upstairs, there is the main double bedroom with built in wardrobes and the third bedroom / study. Brae of Blackton is a perfect example of an idyllic, quiet outdoor country lifestyle. Sat in just over 1 acre there are charming garden grounds lying to the front, including a natural wild area of garden which attracts many wildlife and birds. Whilst to the rear there is the walled kitchen garden with potting shed allowing you to grow an array of fruit and vegetables and an enclosed chicken coop sits alongside. The fascinating honeyberry orchard lies to the north, on a south facing slope, with the property lined by young willow, oak, Scots Pine and fruit trees as well as a colourful wild rose and beech hedge. There are various workshops and garages for outdoor storage and workspace.Brae of Blackton is certainly a property to be viewed and is sure to be popular amongst buyers.ACCOMMODATIONGround Floor: Vestibule, hall, sitting room, sunroom, dining kitchen, bedroom 2 and bathroom.First Floor: Bedroom 1 & bedroom 3/study.GARDEN GROUNDSThe front of Brae of Blackton is south facing, with patio area, perfect for garden furniture. To one side is a large grass lawn area and to the other, a more natural garden with plants and shrubs which encourage wildlife and birds.To the rear there is a walled kitchen garden with potting shed and an enclosed chicken run. Thereafter the remaining land is planted with trees, grass, wildflower areas and the honeyberry orchard.Detached workshop, with electricity & light, and single car port/wood store.Detached timber clad garage with electricity and light and double doors.SERVICES, COUNCIL TAX AND ENERGY PERFORMANCE CERTIFICATE(S)Water PrivateElectricity MainsDrainage Septic TankTenure FreeholdHeating Oil CHCouncil Tax Band DEPC Band DSITUATIONBrae of Blackton is set in a beautiful and quiet countryside location, midway between Turriff and Banff. Turriff is a thriving town, where there is a good variety of shops and other well supported facilities including a swimming pool, library, community centre, sports centre, and golf course. The historic coastal town of Banff offers sailing facilities on the Moray Firth famed for its scenic beauty, small fishing villages and rich wildlife. There is a primary school at King Edward, 1.0 mile, and secondary education at both Turriff and Banff Academies.
 
                                 
                                 
                                 
                                 
                                 
                                 
                                 
                                 
                                 
                                 
                                 
                                 
                                 
                                 
                                 
                                 
                                 
                                 
                                 
                     
                                                 
                                                 
                                                