Tower House

Rothienorman, Inverurie, Aberdeenshire, AB51 8UP

Asking Price £750,000

24 acres

Bedroom Count icon 4

Reception Count icon 4

Bathroom Count icon 3

  • 4 reception rooms. 4 bedrooms
  • Stunning country landscape and panoramic views
  • High-quality internal finishes and unique features
  • Combination of garden, woodland and paddocks totalling 24 acres
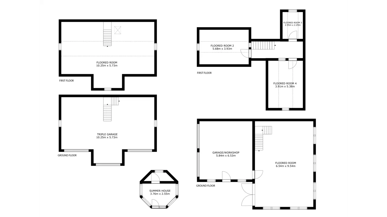
  • Triple garage with floored attic space
  • Detached 2 storey garage with workshop

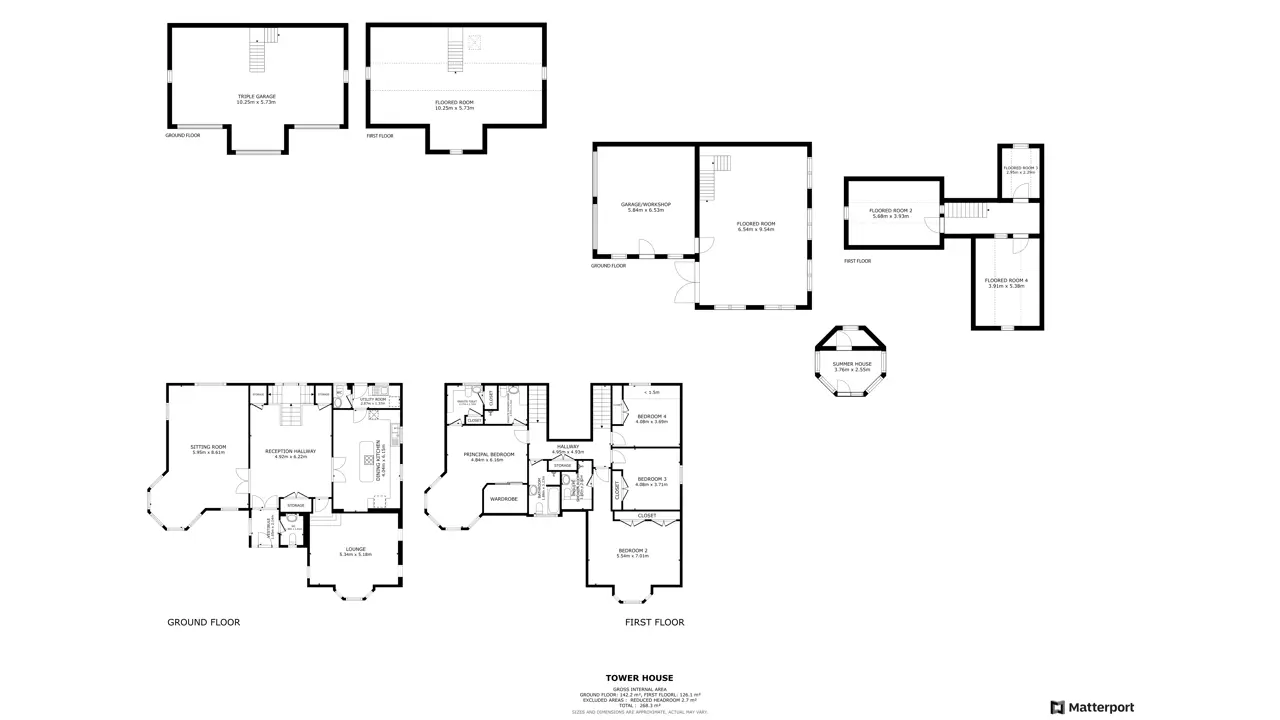
Tower House is a luxury detached family home located within a most private rural setting, yet just minutes from the village of Rothienorman and only around nine miles’ drive to Inverurie. A truly stunning home with panoramic views of the open countryside and Bennachie Hill in the distance. Situated within approximately 24 acres of a mixture of garden grounds, woodland, and paddocks, this property offers the countryside lifestyle in abundance. The triple garage and further detached double garage and workshop are superb additions to the property and have been finished to the same high standards as the house itself.Completed in 2012 by the current owners, Tower House offers a modern and low-maintenance home built to an exceptional standard. A high level of thought and care went into the design and overall presentation of Tower House, with views of the countryside commanding the aspect from most rooms. Internal joinery work has been mostly uniquely crafted, and the striking reception hallway with its grand oak staircase is testament to the meticulous workmanship on display throughout. Further striking features of this beautiful home include the vaulted ceiling in the principal bedroom, the beautiful stained-glass window on the staircase, and oak wall panelling in various locations.Upon entering the front vestibule, a handy WC is located off to the side, and glazed double doors open onto the main reception hall, which can only be described as the true heart of the home. With its generous size, this area has become the social hub and dining room for the owners. Double doors lead through to the main sitting room a beautifully presented and most generously proportioned space with large windows to maximise the views. The hexagonal-shaped bay window is a unique feature of the front ‘tower’-shaped exterior.Also accessed from the reception hallway is a second lounge, which is equally well presented and offers a warm, inviting space in which to relax and unwind. Double doors again lead to the dining kitchen, which features a comprehensive range of wall and base-mounted units. The large central island unit provides additional storage and worksurface space. Quality appliances are inset and integrated, with a large utility room adjacent. The utility room has an external door and a most handy WC.Returning to the reception hallway, the split-level staircase leads to the upper hallway, which provides access to all bedroom accommodation and the main bathroom. The principal bedroom suite is truly stunning. The bay window has a delightful seating area from which to enjoy the panoramic views. There is an en-suite shower room along with a second en-suite WC with sink and storage cupboards. There is also a large walk-in wardrobe.The second expansive bedroom has also been exquisitely presented and features an en-suite shower room. There are two further equally spacious double bedrooms, both with built-in wardrobes. Completing the accommodation is a sizeable family bathroom with a separate shower enclosure. All en-suites and the bathroom are finished to a luxury standard, and there are ample storage cupboards throughout the home.Tower House also offers a superb outdoor lifestyle. Not only has the house been crafted to a high specification, but the grounds also extend to around 24 acres and provide a wealth of opportunity. Early viewing is essential to appreciate the location of this stunning home and the potential on offer.ACCOMMODATIONGround floor: vestibule with w.c off, reception hall/dining room, kitchen/dining room, utility room with w.c off, living room, sitting room.First floor: principal bedroom incorporating a living area within the bay with ensuite dressing room/w.c and ensuite shower room, bathroom, bedroom 2 with ensuite shower room, 2 bedroomsSERVICES, COUNCIL TAX AND ENERGY PERFORMANCE CERTIFICATE(S)Water - Private WaterElectricity - MainsDrainage - Septic tankTenure - FreeholdHeating - Oil Central HeatingCouncil Tax - Band GEPC - DGARDEN GROUNDSTower House has a commanding presence within its rural landscape. Accessed from the main road via a private road with shared access to just a few other residences, the privacy afforded at Tower House is second to none. Easily maintained gardens of around 2 acres surround the property and are mainly laid to lawn. There is a large, tarred driveway which can accommodate several vehicles, with a turning point to the front of the house for ease. The octagonal-shaped, stone-built summer house provides a wonderful space in which to enjoy the gardens and views. An 11-acre paddock/field is fenced. The woodland area is also around 11 acres.OUTBUILDINGSAdjacent to the main house, there are two detached garage buildings offering a wealth of potential. Built with the original house in 2002, the double garage spans over two levels. On the ground floor, vehicle and pedestrian access is provided, with a large workshop space, and on the upper attic level there are three rooms, all with double-glazed windows. The detached triple garage was a later addition, built around 2015. This garage also has a fixed staircase with attic space. Both buildings have power and light.SITUATIONThe property is located approximately 4 miles from the village of Rothienorman which has a primary school and convenience stores. There are also some independent retailers. Daviot is 4 miles from the village which has a primary school, village hall, garden centre and village pub. The nearest hamlet Drum of Wartle has a garage with fuel and a shop. Oldmeldrum is the nearest town with a Co-op supermarket, two pubs, cafés and a selection of takeaway outlets. Meldrum House Country Hotel and Golf Club are easily reached. The town is also home to the historic Oldmeldrum Golf Club, where golf has been played for 125 years. Secondary schooling is at Meldrum Academy. Inverurie is an expanding and prosperous town situated in the valley of the River Don with good road and rail links to the north and south including to Aberdeen, Dyce, Huntly and Inverness. There is an excellent health centre, which is integral to the local hospital, several large supermarkets, a Marks & Spencer food store, a swimming pool and community centre nearby as well as golf, tennis and bowling. Hillwalking is a popular activity, with many routes available including at the popular Hill of Bennachie.