Braeriach, Nether Burnhaugh

Netherley, Stonehaven, Aberdeenshire, AB39 3QQ

Offers Over £725,000

Bedroom Count icon 5

Reception Count icon 2

Bathroom Count icon 5

  • 2 reception rooms. 5 bedrooms 5 bathrooms
  • Striking countryside location & views
  • Impressive open plan kitchen
  • Master suite with dressing room
  • Contemporary bathrooms
  • Integral double garage

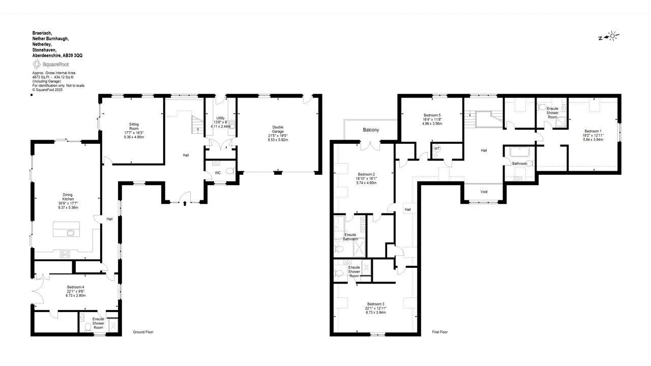
Braericach offers the perfect balance between quiet countryside living and being in easy reach of both Aberdeen City and the charming coastal town of Stonehaven. Sat amongst the beautiful Aberdeenshire countryside, with far reaching views and an idyllic setting, this property offers a wonderful sustainable family home spanning over 2 levels. The property forms part of a small executive development of 6 homes, designed and built by local architects and builders to an exceptional quality and standard. The design & style is sympathetic to the environment and setting and includes slate roof and Scottish larch timber cladding with timber windows throughout, whilst internally there is under floor heating to the ground floor fed from an air source combi boiler.The accommodation comprises an impressive entrance hallway. This delightful open space creates the tone for the rest of the property, a high ingress of natural light floods in. A timber staircase with a full bank of glazed windows behind is an attractive feature. The hallway gives access also to a WC and a generous proportioned utility room, which in turn gives access to the double garage. The sitting room has an abundance of natural light and French doors to the garden maximise not only an inside out feel but create a picture frame to the views beyond. The impressive dining kitchen & family room is a large and wonderful family space. Three sets of sliding Patio doors open out to the garden and there is a beautiful central island with informal dining. Completing the ground floor accommodation is a double bedroom with en-suite, doors opening to the garden and a large, fitted wardrobe. The first-floor galleried landing features a bespoke triangular window which floods the space with natural light. The bright and airy feel is maximised with the light décor, carpeting and glazed panel to the staircase. The master suite is exceptional in size and includes a double bedroom with balcony, fully fitted walk in wardrobe/dressing room and a luxury ensuite bathroom. Bedroom two and three both benefit from an ensuite shower room. A further versatile bedroom has generous proportions and there is another small study room. Completing the accommodation is the contemporary main bathroom.ACCOMMODATIONGround Floor: hall, sitting room, dining kitchen, bedroom 4, en-suite shower room, utility room, WC.First Floor: hall, bedroom 1, en-suite, bathroom, bedroom 5, bedroom 2, en-suite bathroom, bedroom 3, en-suite shower room, study room.Water -Mains Electricity - MainsDrainage - Private WasteTenure - FreeholdHeating - Air Source/Oil CombiEPC - BGARDENBraeriach sits in generous garden grounds enclosed by fencing. The garden is presently laid to lawn, creating a blank canvas for any buyer to create their own beautiful garden grounds. The tarmac driveway provides off street parking and leads to the integral double garage. The garden views stretch over to the countryside and beyond.Braeriach offers a great opportunity to reside in a peaceful and tranquil rural setting with all the advantages of the country lifestyle, yet only a few miles from the city centre. Located only 6 miles away from the AWPR (Aberdeen Wester Peripheral Route), giving extremely easy access to both the North & South of Aberdeen. Given the property’s location a wide range of leisure pursuits are close to hand including golf courses at Deeside and Peterculter, Salmon and Sea Trout fishing on the River Dee and scenic country walks including those in the nearby Forestry Commission Woodlands. The property itself is set in the catchment area for Lairhillock Primary School and Mearns Academy while there are also a number of private schools in the city including Robert Gordon’s College, St Margaret’s School for Girls, Albyn School and the International School Aberdeen in Cults.