House Sites

Richmond Avenue, Rhynie, Huntly, Aberdeenshire, AB54 4HJ

Offers Over £50,000

  • Full planning permission
  • Detached bungalow
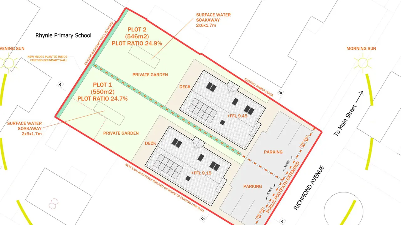
  • Two sites adjacent to each other
  • Services connected to site
  • Amenities in walking distance
  • Available individually or together

Located within the heart of Rhynie, a popular rural village in Aberdeenshire, this generous site has full planning permission for a detached bungalow. There are two sites adjacent to each other and each house is single storey and offers contemporary open plan living and three generous bedrooms. Plot 1 extends to around 550sqm and Plot 2 extends to around 546sqm. The plots could be sold individually or together.POTENTIAL ACCOMODATIONGround Floor: Vestibule, entrance hall, open plan living room/kitchen/dining, utility room, master bedroom with ensuite shower room, bedroom two bedroom three and bathroom. PLANNING PERMISSIONFull Planning Permission was granted by Aberdeenshire Council Planning Department for Erection of 2 Dwellinghouses on the site. Details of the planning permission can be reviewed on their planning portal under reference APP/2022/2424.SERVICESWe understand the site is serviced by mains water, mains sewer, electricity and telephone. However, it’s recommended that potential buyers satisfy themselves in this regard.SITUATIONRichmond Avenue is located in the quaint village of Rhynie some 8 miles south of Huntly in the county of Aberdeenshire. Located between Aberdeen to the east and Elgin to the west, Huntly is an historic town prospering during the 18th Century through the expanding linen industry. Today, amenities include primary and secondary schools, two major supermarkets, a good selection of independent shops, sporting and recreational facilities and a train station providing direct links to Aberdeen and Inverness. The small village of Rhynie hasa local shop, church and primary school. Aberdeen (about 37 miles) provides all of the facilities expected from a modern and prosperous city, with an excellent selection of shopping, retail parks and associated services, rail links and an airport (about 29 miles) providing regular domestic and international flights.