Aydon Grange Estate
Aydon Road, Corbridge, Northumberland, NE45 5PWOffers Over £2,300,000
42.41 acres
5
3
4
- Impressive staircase hall
- 3 Reception rooms
- Aga kitchen/breakfast room
- Butler’s pantry
- Utility
- Laundry
- Cloakrooms
- 6 bedrooms including principal bedroom with en suite Bathroom (one used as a study)
- 4 bathrooms (3 en suite)
- Courtyard
- Car port
- Stables
- Stores
- Tennis court
- Extensive garden & grounds
- South facing sun terrace
- Lodge Cottage
- Permanent pasture paddocks for grazing
- Woodland
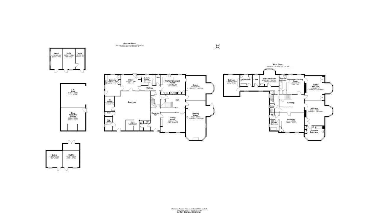
Brief HistoryAydon Grange was built in the 1890s and is believed to have originally been the dower house to the Aydon Estate. It was sold in 1948 to the sellers family and the sellers have added the Quarry Wood and the land to the South which they bought from the Howden Dene Estate in 1994.Lot 1 - Principal House, Garden and GroundsAydon Grange is one of the best houses in Corbridge. It is a handsome and substantial period house that provides about 5,000 square feet of comfortable and well-proportioned living accommodation. It is a family home with plenty of period character, positioned in an enviable setting and approached via an impressive private drive which passes through mature trees and lawns culminating in a gravel sweep at the front of the house. Aydon Grange is only a hop and a skip from the middle Corbridge.The house is surrounded by an extensive and pretty garden with a main lawn, some carefully created borders, a mixture of mature specimen trees and an orchard, there are two very special copper beach trees. The south facing sun terrace is an extremely pleasing feature of the garden. On the east side of the house there are a number of other garden “rooms”, high beech hedges provide structure and shelter in the fruit garden and orchard. This is high quality space for entertaining and unwinding. There are a good number of useful outbuildings and stores, some of which form an appealing courtyard. Beyond the garden is a lovely block of mature woodland of hardwood trees (9.34 acres (3.77Ha)), underplanted by spring flowering bulbs. There are about 12.34 acres (4.98Ha) of permanent pasture arranged mostly to the north and east of the house in two fenced parcels which could be subdivided further if necessary.There is an impressive staircase hall at the core of the house, off which are three reception rooms. These provide flexible and comfortable living accommodation. The drawing room is the largest and most formal of these with a high ceiling, an attractive open fire and bay window with a door giving access to the south facing terrace and garden. The snug is an intimate room with a wood burning stove, hatch to the kitchen and the other bay window. The snug has been used as a dining room in the past but now this is in the grander room, closer to the front door. The view to the south over Aydon Grange parkland from these windows is wonderful. The kitchen has wooden units as well as integrated appliances and an electric Aga. Adjoining the kitchen there is a utility room for further appliances, a butler’s pantry and a laundry. These rooms link and lead to the courtyard and are three sizeable rooms with scope for a variety of uses. Upstairs there are six double bedrooms, including a large principal bedroom suite. The principal bedroom and two further bedrooms have en suite bathrooms, while there is also a house bathroom.The house has a pretty courtyard and there is an extensive range of useful outbuildings which serve well for parking, secure storage and stables. These outbuildings may provide opportunities e.g. a studio or annex. The tennis court is in a sheltered position.Lot 2 - Lodge CottageAydon Grange Lodge is an attractive detached single-story house with three bedrooms, one bathroom, a living room and a modern kitchen. It has an independent garden and there are two car parking spaces. About 0.28 acres (0.11 Ha).Lot 3 - Land Of good amenity value to the main house, about 16.96 acres (6.86Ha) of permanent pasture, planted with specimen parkland trees and a strip of about 0.9ac (0.36Ha) which has been planted as a shelter belt on the western fringe. More recently a paddock has been planted to continue the shelter belt and there is an attractive stone building which also presents with a variety of possible uses (subject to planning). There is water supply, and the fences are in good condition. This parcel of land has the benefit of a right of way through the old Howden Dene Farm and out on to the Newcastle Road (B6530).LocationAydon Grange is close to Corbridge but is a country house with its own identity. It is blessed with a high degree of privacy and is in a peaceful position. The convenience of the location of Aydon Grange and the extensive grounds are extremely compelling attributes.Corbridge is a popular village or character and historic importance. It sits comfortably alongside the picturesque River Tyne. The property will appeal due to the proximity to central Corbridge which will be within walking distance for some. Corbridge has a wide range of everyday amenities on offer including a health centre, primary and middle schools, popular independent shops, pubs and restaurants, a garage and railway station. A wider range of amenities can be found in Hexham with its choice of shops and supermarkets, leisure facilities and schools. The area is well connected by road, with the A69 providing routes towards the A1 and Newcastle Upon Tyne. For trains, Corbridge station is just south of the village, providing services to Newcastle and Carlisle. The surrounding Northumberland countryside is ideal for walking, riding and cycling, with the magnificent North Pennines and Northumberland National Park within easy reach, while golf is available nearby at the renowned Matfen and Hexham Golf Clubs.LottingThe Sellers are open to an alternative lotting proposal. Any sale will have to include provisions for necessary rights between the lots.OverageLot 3 of Aydon Grange is being offered for sale subject to development value covenants (overage) relating to increases in value arising in connection with the grant of planning permission for change of use. The specific details will be dealt with under the legal documentation. The House and garden will not be subject to the overage clause.Sporting and Mineral RightsThese are included in the sale as far as they are owned.DirectionsDrive out of Corbridge on the Aydon Road (B6321). The drive to Aydon Grange is the last on the right before you cross the bridge over the A69.What3words: crimson.galloping.moss Postcode: NE45 5PWServicesAydon Grange is connected to mains water, electricity and drainage, Oil fired central heating. Electric Aga.EPC – Band E.Council Tax – Band HAydon Grange Lodge is connected to mains water, electricity, drainage and gas fired central heating.EPC – Band ECouncil Tax – Band DLocal AuthorityNorthumberland County CouncilTenureThe freehold of Aydon Grange is for sale with vacant possession on completion. The Lodge Cottage is let on a term expired assured shorthold tenancy. The grazier of the land will require 28 days notice to provide vacant possession.ViewingStrictly by appointment with Galbraith Hexham Tel: 01434 693693Email: hexham@galbraithgroup.comIMPORTANT NOTES:1. These particulars are intended to give a fair and overall description of the property. If any points are relevant to your interest, please ask for further information prior to viewing. Prospective purchasers are advised to seek their own professional advice. 2 Areas, measurements and distances are given as a guide. Photographs depict only certain parts of the property. Nothing within the particulars shall be deemed to be a statement as to the structural condition, nor the working order of services and appliances. 3 The Seller will not be obliged to accept the highest, or indeed any offer and has the right to accept an offer at any time or withdraw the property from the market. The Seller will not be liable for any costs incurred by interested parties. 4 If there are matters of particular importance, please raise this with us and we will try to check the information for you. Particulars prepared April 2025. Photographs taken March and April 2025.ANTI MONEY LAUNDERING (AML) REGULATIONS: Please note that under the 2017 AML regulations we are legally required to carry out money laundering checks against purchasers. To enable us to complete these checks purchasers will need to provide along with their offer either: a) originals of primary (e.g. a passport) and secondary (e.g. current council tax or Utility bill) or b) copies of the same certified and dated by appropriate professional. Failure to provide this information may result in an offer not being considered.
 
                                 
                                 
                                 
                                 
                                 
                                 
                                 
                                 
                                 
                                 
                                 
                                 
                                 
                                 
                                 
                                 
                                 
                                 
                                 
                                 
                                 
                                 
                                 
                                 
                                 
                                 
                                 
                                 
                                 
                                 
                                 
                     
                                                 
                                                 
                                                 
                                                 
                                                