Feshieside

Feshie Bridge, Kingussie, Highland, PH21 1NG

Offers Over £450,000

Bedroom Count icon 3

Reception Count icon 1

Bathroom Count icon 1

  • 1 reception room. 3 bedrooms
  • Well-proportioned and flexible accommodation
  • Spectacular riverside setting
  • Private and peaceful location
  • Within the Cairngorms National Park
  • Salmon and trout fishing rights on River Feshie

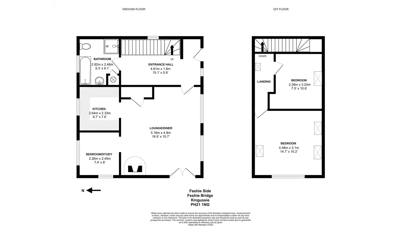
Feshieside presents a rare opportunity to purchase a characterful cottage which is constructed of rendered block under a pitched slate roof and extends to some 94 square metres. The cottage dates back to 1988 and provides flexible and well-proportioned accommodation over one and a half storeys. To the ground floor, a solid hardwood door opens into the entrance hallway with doors to the sitting/dining room, bathroom and under stairs cupboard. The bright and airy sitting/dining room has large South facing windows and over light windows, part wood panelled walls, a distinctive stone open fireplace and glazed doors leading out to stone steps into the garden. There is a large shelved cupboard/larder. The study could also be used as a third bedroom. A doorway leads to the fitted kitchen with space for a free standing cooker (LPG) and fridge-freezer. Returning to the entrance hall, a door leads to the family bathroom which has a built in storage cupboard housing the hot water tank. There is a high quality three piece suite comprising WC, wash-hand basin, bath with shower over, complimented by half height tiling, electric towel rail and also a fully tiled shower with electric MIRA shower. From the hall, a timber staircase leads to the upper floor landing – the under-stair cupboard is fully shelved and houses the electric switch board and meter. There is also space and plumbing for a washing machine and spin dryer in the hall. The upper landing has extensive shelved storage and doors lead to the two bedrooms. The master bedroom is a particularly light room with large windows overlooking the garden and beautiful countryside beyond. The second bedroom faces South and has an upper floored area suitable for storage. The cottage is fully double glazed, has mains electricity, broadband and Sky TV, private water and private foul drainage. There is a central heating system installed but not connected to a boiler and there is also a flue for an Aga or similar stove. GARDENOutside, the beautifully maintained garden surrounds the cottage and extends to 0.26 acres. It includes areas of lawn, well-tended borders, mature trees and an array of shrubs which are under planted with snowdrops, daffodils and blue-bells. To the East of the cottage is a delightful pond with a very productive crab apple tree and split level banking that runs for the entire length of the garden. There is an extensive fenced vegetable garden which is totally organic and also a variety of soft fruit including, blackcurrants, gooseberries, raspberries and strawberries which produce prolific crops each year. There are various log stores, a garden store and a timber double garage/workshop with inspection pit, power sockets and lighting. An additional area of ground of just under quarter of an acre and belonging to the neighbouring croft has been cultivated as garden to compliment the cottage garden. This is used on an informal agreement and may be available to purchase.FISHINGSA unique feature of the property is that Feshieside comes with salmon and trout fishing rights on the eastern bank of the Lower Feshie. The fishings include an unlimited right to the owner of Feshie Side to fish with two rods over a stretch of 1.2 miles extending downstream from ‘Bridge Pool’ just below Feshie Bridge to just before the confluence of the Feshie with the River Spey. This section of the River Feshie is designated as a Site of Special Scientific Interest (SSSI). The fishings do not include ownership of the river bank, standing timber, or the river solum to the medium filum, merely the right to fish for Salmon and Trout. This stretch of river has only been lightly fished on a recreational basis by the present owner of Feshieside and no records have been kept. However, it offers great potential for sports enthusiasts in a stunning environment. The River Feshie is one of the main tributaries and spawning grounds of the River Spey. The Feshie is a spate river and offers salmon fishing in the Spring and during the Autumn run in September. Sea trout can be expected from July onwards and the river holds a stock of brown trout throughout the season. SITUATION Feshieside is located 2.7 miles east of the small village of Kincraig in the small hamlet of Feshie Bridge, lying at the foot of Craig Mhigeachaidh – `the whispering mountain`. The cottage is nestled in a very private and secluded position on the banks of the River Feshie, at the edge of a mature native woodland, within the Cairngorms National Park – a designation established in 2003 to protect the areas beautiful and unspoilt landscape and to promote a balance between nature and the community. Feshie Side faces due South and has superb open views to the heather clad mountains in the West and the stunning River Feshie. The local area is a haven for outdoor enthusiasts and local attractions and facilities include mountain activities, cycling, skiing, water sports, fishing and bird watching on the Abernethy and Insh Marshes RSPB reserves. Pony trekking, deer stalking, shooting and additional fishing can be organized on the nearby estates. The gliding airstrip is only a few minutes drive from the cottage and the South facing bowl is rated as one of the UK`s top mountain glide sites. The Cairngorm ski centre is approximately 15 miles away and the Loch Insh Watersports Centre is just 1.8 miles from the property. Aviemore (7.5 miles) and Kingussie (8 miles) offer a good range of local amenities including a variety of shops, supermarkets, restaurants, cafes, and bars, as well as mainline railway stations providing links to the North and South with the London overnight Sleeper train stopping at both stations, while Inverness (39 miles) has all the facilities of a modern city including its airport with regular flights to the south and Europe. There is a Primary School in Kincraig and High School in Kingussie. There are excellent medical facilities at Aviemore and Kingussie including the new Community hospital being located at Aviemore.