Shanwell Farm Cottage

Tayport, Fife, DD6 9PG

PCM £1,100

Bedroom Count icon 2

Reception Count icon 1

Bathroom Count icon 2

  • Landlord Registration Number: 19607/250/04470
  • Energy Performance Rating EPC Band D(55)
  • Council Tax Band B
  • Viewing can be requested by clicking - Request Details / Request Viewing.

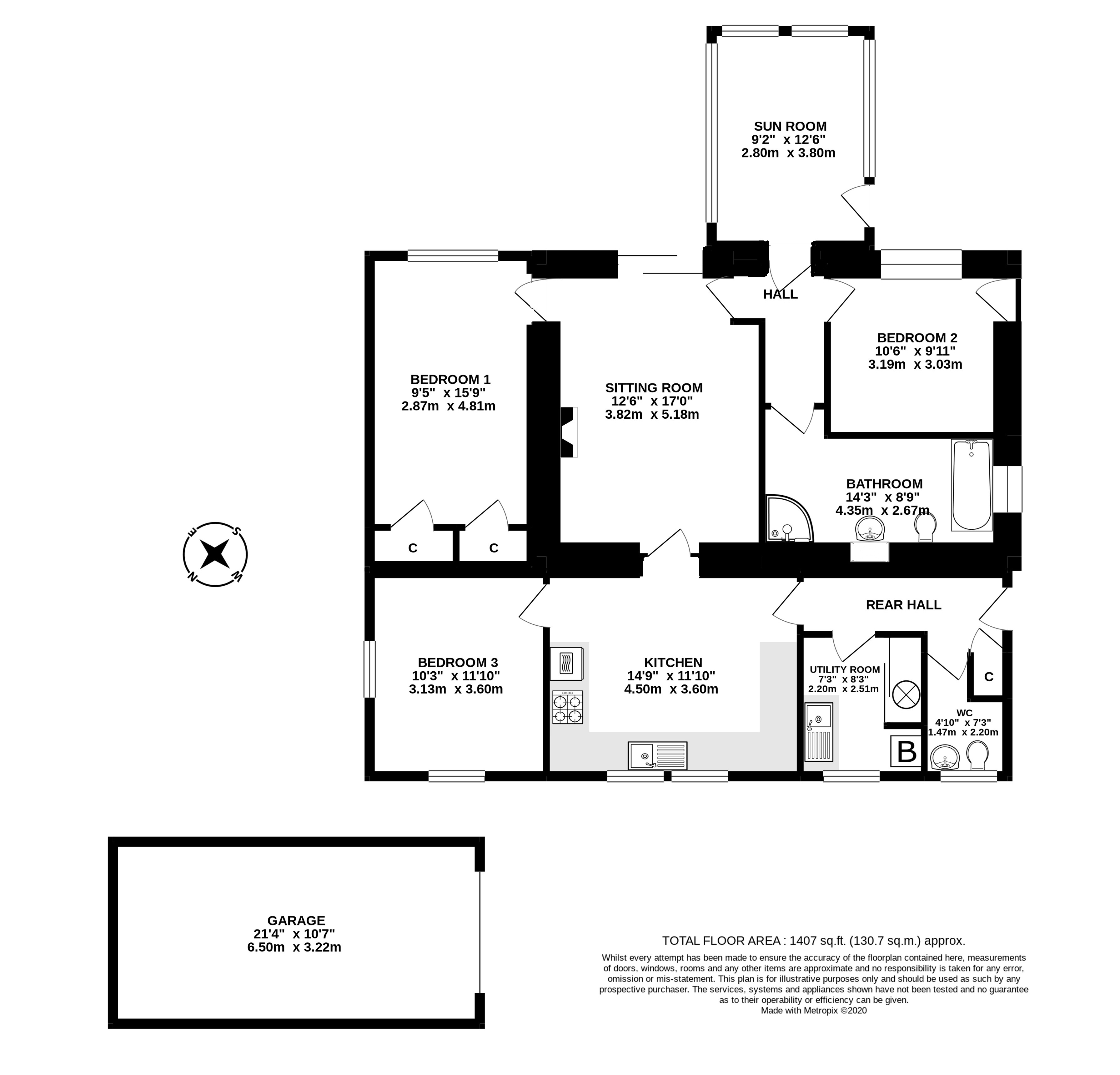
Shanwell Cottage is a 2/3 bed farm cottage located at the back of a working farm overlooking agricultural fields towards Tentsmuir Forrest.There are two / three bedroom, sitting room with patio doors which lead out to the garden. Dining room / bedroom 3 is located off the kitchen. Large family bathroom with bath, sink, wc & walk-in shower, utility room, separate wc, large fully fitted kitchen with views out across the farm.Outside there is a small patio area with lawn to the front of the property. To the rear of the property is a large parking area with single garage. Pets considered but please bear in mind that its is a working farm with live stock.The property is heated by oil central heating and has double glazing.Unfurnished, Available NowRent £1100 pcm, Deposit £1100GENERAL Tayport has some good local services including a village shop, restaurant/bar and primary school. Nearby Newport-on-Tay has a similar offering of amenities. The resurgent city of Dundee has an excellent range of services. The property is highly accessible, well positioned for access to Dundee, Cupar and St. Andrews, with Perth, Aberdeen and Edinburgh also within comfortable driving distance. Cupar, Fife’s bustling market town, lies an 11 mile drive to the south and offers an excellent range of shops and services and the historic town of St. Andrews. North-East Fife provides access to an area of particularly outstanding and varied countryside with hill, wood, river, farmland and coastline.