Thornyhill
Fettercairn, Laurencekirk, Aberdeenshire, AB30 1YDOffers Over £725,000
5 acres
5
3
3
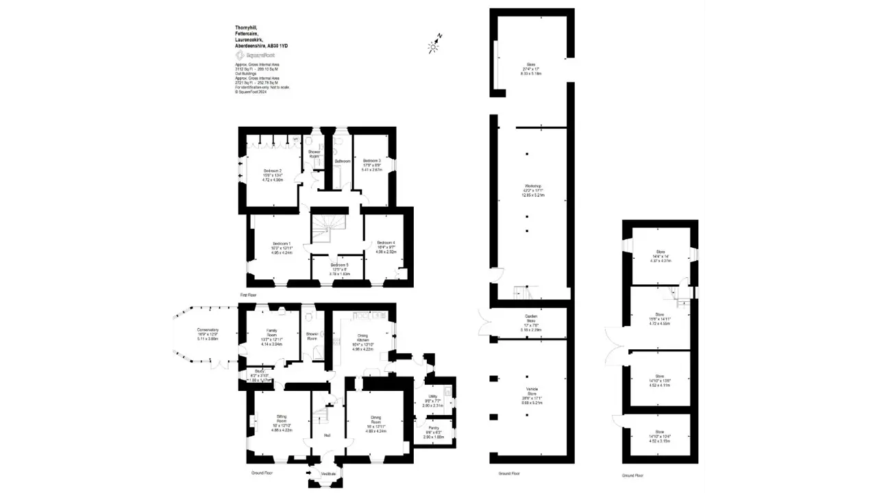
- 3 reception rooms. 5 bedrooms 3 Bathrooms
- Beautiful, detached countryside home
- Three versatile public rooms and 5 double bedrooms
- Established and idyllic garden grounds
- Variety of outbuildings with potential
- Accessible to surrounding villages and to the A90
An attractive and substantial stone-built, slate-roofed family home with an original build date of around circa 1850s. Surrounded by mature garden grounds Thornyhill has spacious and well-proportioned accommodation and a lovely combination of period features with modern fixtures and fittings. Gates open onto a drive that leads up to gravelled parking at the side of the house.Both the entrance vestibule and hallway are light and welcoming, with the hallway having a carpeted staircase to the first floor. There are two imposing front reception rooms. The sitting room features traditional ceiling coving, high skirting, sash and case windows and a wood burning stove. The formal dining room is an equally generously proportioned room, with ample space for a variety of free-standing furniture. An inner hallway benefits from a small study room and a well-appointed shower room. The family room is a comfortable and inviting public room with a multi-fuel stove, tiled fireplace and wooden mantel above. A glazed panel door leads through to the exquisite conservatory from where the gardens can be fully enjoyed from every angle and reached via French doors. A large dining kitchen has been fitted with a contemporary range of wall and base mounted units. A large Aga cooker is a lovely addition to the kitchen and gives a traditional feel to the room. Fully fitted with integrated appliances the kitchen has central space for a large dining table and chairs as desired. Leading off from the kitchen a rear vestibule with back door access is a convenient boot room, with large utility space and walk in pantry cupboard.Upstairs is a sizeable landing which gives access to a wealth of versatile accommodation. There are three good sized double bedrooms, all featuring tasteful décor and views over the gardens and countryside beyond. A single bedroom could be utilised as a study or dressing room as desired, and the master bedroom is complete with a range of fitted wardrobes and is well served by an immaculate en-suite shower room. A family bathroom is well placed to service all the bedrooms.The subjects benefit from an oil fired central heating system serving steel panelled radiators. The boiler is located within the ground floor showerroom cupboard. Domestic hot water is provided via this system and supplemented via the thermal store located within a first floor bedroom cupboard. In addition, we understand that solar panels supplement the property’s hot water supply. All relevant documentation in respect of this should be obtained.ACCOMMODATIONGround Floor - Entrance Hall, Living Room, Dining Room, Kitchen, Sitting room, Shower Room, Conservatory and Utility Room.First Floor - Five Bedrooms, Bathroom and Shower Room.Water - MainsElectricity - MainsDrainage - Bodisc SystemTenure - FreeholdHeating - OilCouncil Tax - Band FEPC - DGARDEN GROUNDSThe property benefits from a substantial area of mature and well-maintained garden grounds which surround the property. In total Thornyhill grounds reach around 5 acres. Expansive areas of lawn, established planting and mature woodland provide an idyllic outdoor environment for all to enjoy at Thornyhill. The boundaries where defined are in stone walling, timber fencing, hedging and post and wire fencing. The driveway in leads to a large, gravelled parking area for several vehicles. A paved patio is an ideal spot to enjoy the garden grounds and spot the various wildlife that visit the gardens.OutbuildingsWithin the immediate grounds of Thornyhill there are two large stone-built former steadings. Further outbuildings comprise a range of large agricultural buildings to the rear elevation. The outlying buildings have vehicle access away from the house and round to the rear. There is a wide scope for the development of the existing outbuildings at Thornyhill and they offer any new purchaser a wealth of opportunities. It is worthy of note that photovoltaic panels have been installed on the roof of one of the steading buildings, this supplements the property’s electricity supply and feeds back into the National Grid.
 
                                 
                                 
                                 
                                 
                                 
                                 
                                 
                                 
                                 
                                 
                                 
                                 
                                 
                                 
                                 
                                 
                                 
                                 
                                 
                                 
                                 
                                 
                                 
                                 
                                 
                                 
                                 
                     
                                                 
                                                 
                                                